15. ročník súťaže Rodinný Dom
2023
Maximilián Hugo Rudinec

Názov projektu
Slnečný dom
Spoluautor projektu
Maximilián Hugo Rudinec
Vedúci projektu
Ing. Marcel Zsóka PhD.
Názov školy
Stredná priemyselná škola stavebná, Žilina, Velká Okružná 25
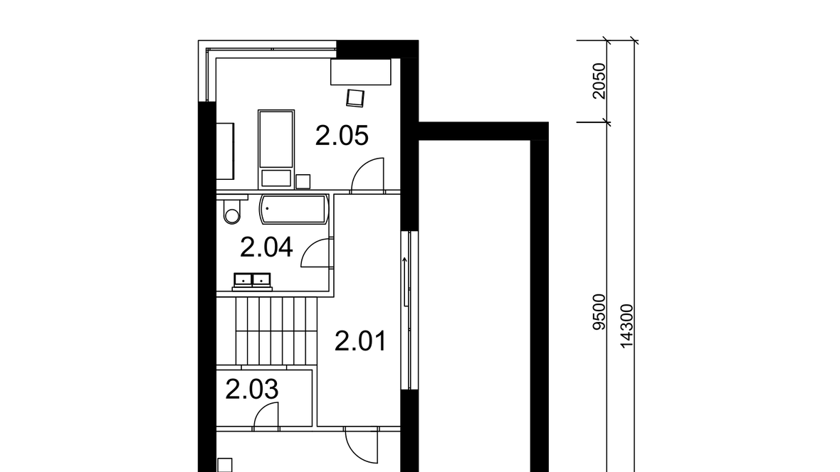
Opis vášho projektu
Slnečný dom je stavba určená pre štvorčlennú rodinu, ponúka rozľahlú obývačku spojenú s kuchyňou, veľký balkón, terasu a priestorné izby. Pozemok je situovaný v Ovčiarsku na kopčeku s juhozápadnou orientáciou a pekným výhľadom. Dom je plný veľkých okien, takže prekypuje denným svetlom. Keďže okná na poschodí niesú také veľké ako okná na prízemí, hlavný zdroj svetla na poschodí zabezpečujú okná Velux.












