15. ročník súťaže Rodinný Dom
.
Laura Lakyová

Názov projektu
Vedúci projektu
Názov školy
Opis vášho projektu
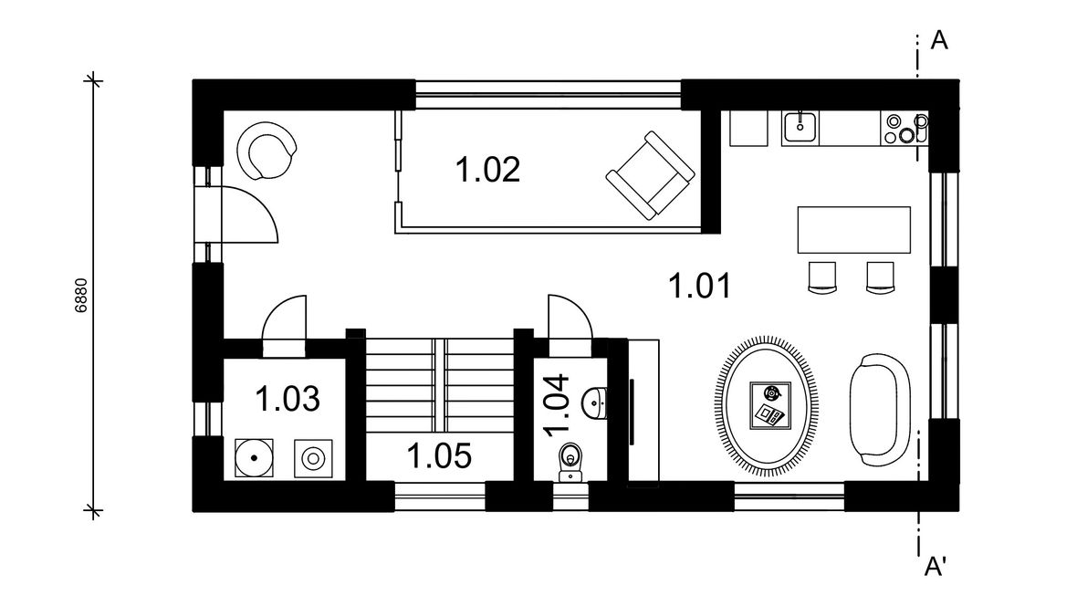
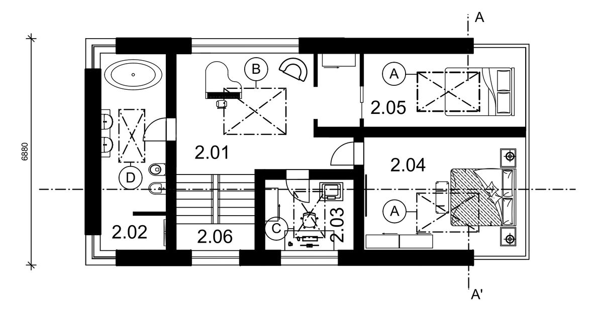
SOLARIA dvojpodlažný tehlový dom je moderný priestor plný prirodzeného slnečného svetla, ktoré zaplavuje interiér a vytvára v ňom teplú a príjemnú atmosféru. Dizajn domu zahŕňa veľké okná, ktoré umožňujú prúdenie prirodzeného svetla, zvýrazňujúc krásu architektúry. Jednou z výnimočných čŕt domova je vnútorná záhrada, ktorá spája prírodu s krásou architektúry. Záhrada sa nachádza v srdci domu a je plná zelených rastlín, ktoré dodávajú priestoru nádych sviežosti a pokoja. Použitie strešných okien Velux ďalej zvyšuje osvetlenie a poskytuje úžasný vizuálny prvok, ten ťahá oči nahor. Vnútorná záhrada a strešné okná Velux sú jedinečné prvky, ktoré robia priestor skutočne výnimočným a vytvárajú atmosféru, do ktorej sa budete radi vracať každý deň.












