15. ročník súťaže Rodinný Dom
PLANTONIC
Natália Vencelová

Názov projektu
Spoluautor projektu
Vedúci projektu
Názov školy
Rok
Opis vášho projektu
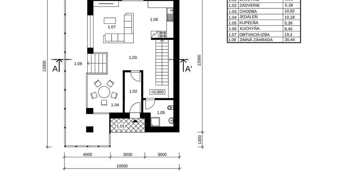
Hlavnou myšlienkou tohto domu bolo spojenie zimnej záhrady s obytnou časťou domu. Názov Plantonic je zložený z dvoch slov, a to PLANT a PLATONIC. Slovo plant symbolizuje rastliny a zeleň, o ktorú dom obohacuje práve zimná záhrada a vnáša kúsok prírody priamo do domu. Slovo platonic znázorňuje zloženie domu, ako pri platonickej láske, kde ide len o vzťah čisto duchovný. Zimná záhrada, preto zdieľa jednu spoločnú dušu s domom, ale aj napriek tomu v dome ľahko rozoznať, že tieto dve časti žijú každý samostatne v spoločnom harmonickom vzťahu. Okrem spoločnej duše tieto časti zdieľajú priestory 1.NP, kde sa nachádza kuchyňa, jedáleň a priestranná obývačka. Zimná záhrada je jednoducho oddelená zapustením priamo do zeme. Výrazným prvkom, ktorý sa z prvého podlažia tiahne až na druhé je knižnica, ktorá sa nachádza pri schodiskovej konštrukcií a vytvára tak útulnú atmosféru. Na 2.NP sa nachádza kúpeľňa, spálňa a detská izba. Zo schodiska sa vieme dostať aj na malú presklenú terasu, z ktorej je výhľad cez galériu priamo do obývačky. Dom je navrhnutý pre rodinu, ktorú zjednocuje príroda.









