15. ročník súťaže Rodinný Dom
THE CONCRETE OASIS
Miroslava Turčaniková

Názov projektu
Spoluautor projektu
Vedúci projektu
Názov školy
Rok
Opis vášho projektu
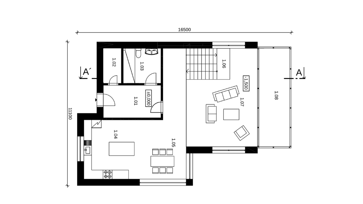
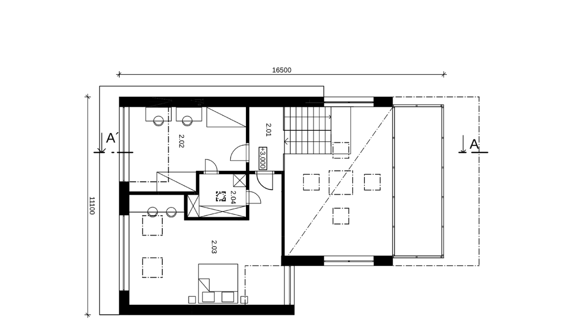
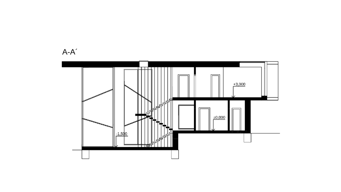
Rada Vám predstavujem tento nádherný dom, ktorý sa nachádza na kopcoch a ponúka úchvatný výhľad na okolitú krajinu. Dom je dvojpodlažný a bol postavený s využitím kvalitného pohľadového betónu, tmavého dubového dreva v interiéri a moderných čiernych doplnkov. Jedným z výrazných prvkov domu sú svetlíky a svetlovody od spoločnosti VELUX, ktoré sa nachádzajú na streche a zabezpečujú prirodzené svetlo v interiéri. Ďalším hlavným ťahákom domu je presklená galéria, ktorá sa rozprestiera cez obidve podlažia a ponúka úchvatný výhľad na lúky a okolitú krajinu. Táto galéria je ideálnym miestom na relaxáciu a oddych, kde si môžete vychutnať krásy prírody. Okrem toho je dom vybavený množstvom moderných prvkov, ktoré zabezpečujú pohodlie a komfort pre jeho obyvateľov. Tento dom je ideálnym miestom pre tých, ktorí hľadajú dokonalé spojenie moderného a funkčného bývania s krásnym výhľadom na okolitú krajinu.












