16. ročník súťaže Rodinný Dom
BAYLA HOUSE
Samuel Múčka

Názov projektu
BAYLA HOUSE
Spoluautor projektu
-
Vedúci projektu
Ing. Arch. Katarína Lavrinčíková
Názov školy
Stredná priemyselná škola stavebná a geodetická Bratislava
Rok
2024
Opis vášho projektu
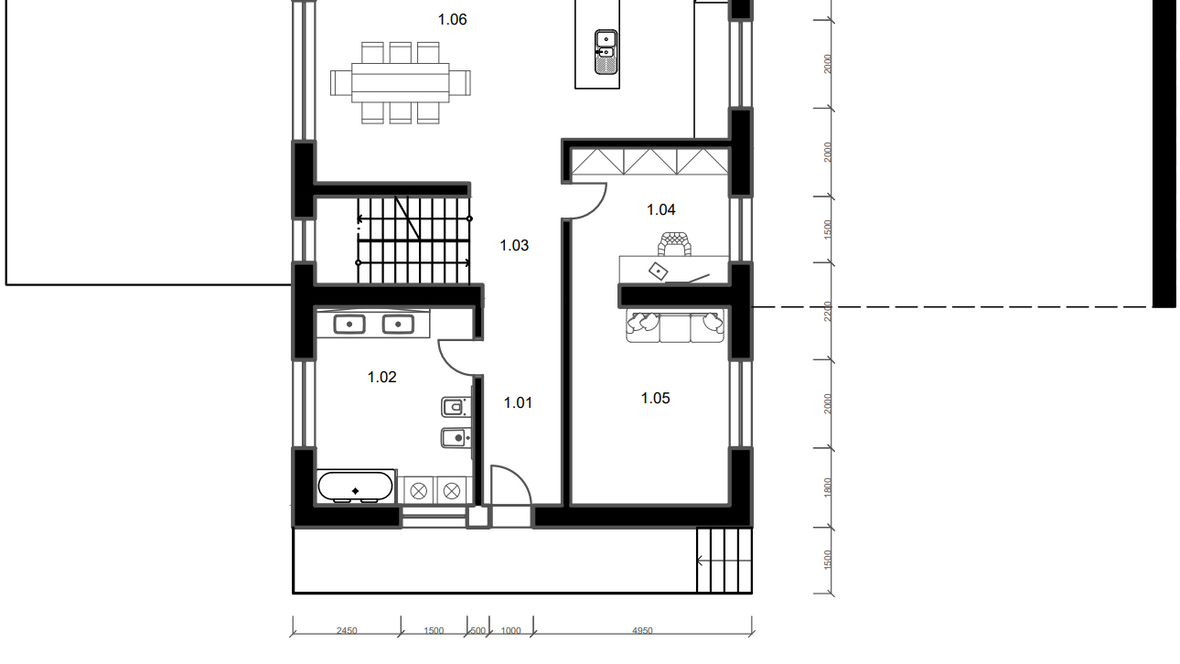
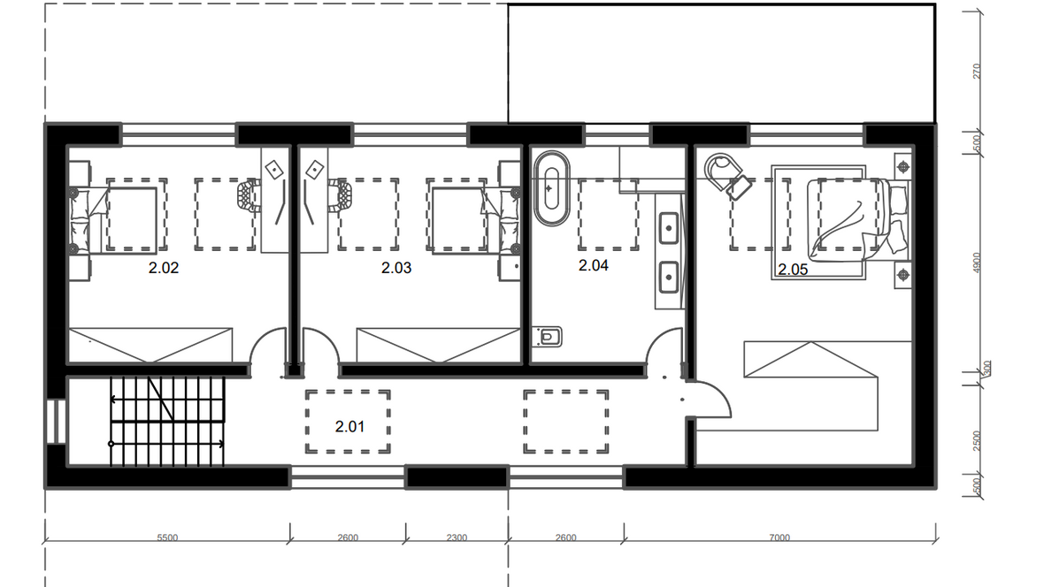
RODINNÝ DOM BAYLA JE URČENÝ PRE 4-5 ČLENNÚ RODINU. JE NÍZKOENERGETICKÝ A VYUŽÍVA MOŽNOSTI PREPOJENIA NA INTELIGENTNÚ DOMÁCNOSŤ. DOM JE DVOJPODLAŽNÝ S ČIASTOČNÝM PODPIVNIČENÍM. NA PRVÝ POHĽAD BAYLA ZAUJME NETRADIČNÝM PRELOŽENÍM KONŠTRUKCIE 1. A 2. PODLAŽIA A OTVORENÝM STROPOM V 2. NP. KTORÝ PRIESTOR PRESVETLÍ VĎAKA STREŠNÝM OKNÁM VELUX KTORÉ JE MOŽNO OVLÁDAŤ DIAĽKOVO. VCHOD DOMU JE ORIENTOVANÝ NA VÝCHOD, ČO ZARUČÍ, ŽE IZBY SPOLU S OBÝVACOU IZBOU BUDÚ PODVEČER VYHRIATE S VÝHĽADOM NA ZÁPAD SLNKA AJ VĎAKA OKNÁM VELUX











