16. ročník súťaže Rodinný Dom
Rodinný dom Monle
Jana Rácová

Názov projektu
Rodinný dom Monle
Spoluautor projektu
Lea Bartošová
Vedúci projektu
Ing. Rácová Jana
Názov školy
Stredná priemyselná škola stavebná Emila Belluša Trenčín
Rok
2024
Opis vášho projektu
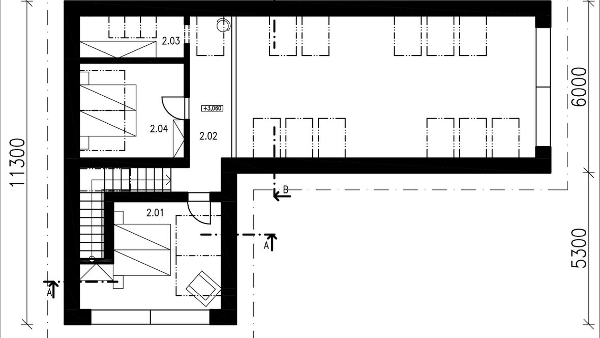
Rodinný dom MONLE sa nachádza v blízkosti prírody. Objekt je navrhnutý pre 2-3 člennú rodinu. Rozdeľuje sa na dve časti nočnú a dennú, ktoré sú prepojené schodiskom. V dennej časti sa nachádza chodba so schodiskom, kúpeľňa , technická miestnosť a veľký priestor rozdelený na kuchyňu, jedáleň a obývaciu miestnosť. Z obývacej miestnosti je prístup na terasu. V druhej nočnej časti sú dve spálne a šatník. Do oboch častí domu vniká svetlo najmä strešnými oknami, ktoré zároveň slúžia na vetranie. Rodinný dom je prekrytý sedlovou strechou so sklonom 45°. Objekt je celkovo ladený do škandinávskeho štýlu.











