16. ročník súťaže Rodinný Dom
Luminia
Sofia Pathóová

Názov projektu
Luminia
Spoluautor projektu
-
Vedúci projektu
Ing. Sylvia Bezáková
Názov školy
Stredná priemyselná škola stavebná v Nitre
Rok
2024
Opis vášho projektu
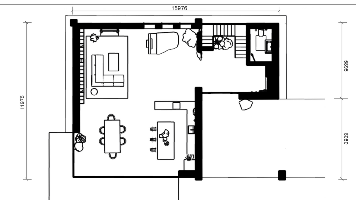
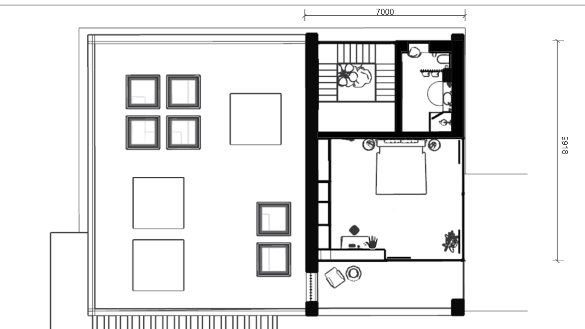
Rodinný dom Luminia je útulným bývaním pre dvojčlennú rodinu, ktoré svojím presvetlením, materiálmi a veľkým priestorom pôsobí čisto a zdravo. Dom poskytuje priestor na oddych ale aj na oslavu či spoločný večer s priateľmi. Priestor je dostatočne svetlý vďaka diaľkovo-ovládatel'ným strešným oknám VELUX, ktoré však podľa potreby môžu byť zatienené vonkajšou markízou. Dom je čiastočne dvojpodlažný. 1. NP je zastrešené plochou nepochôdznou zelenou strechou a 2. NP má sedlovú strechu s otvoreným stropom. Tento rodinný dom je navrhnutý do tichej lokality mesta s priamym kontaktom s prírodou.














