16. ročník súťaže Rodinný Dom - Odmena
WAVE HOUSE
Barbora Fedáková

Názov projektu
WAVE HOUSE
Spoluautor projektu
-
Vedúci projektu
Ing.arch. Petra Radvániová
Názov školy
Stredná priemyselná škola stavebná a geodetická, Košice
Rok
2024
Opis vášho projektu
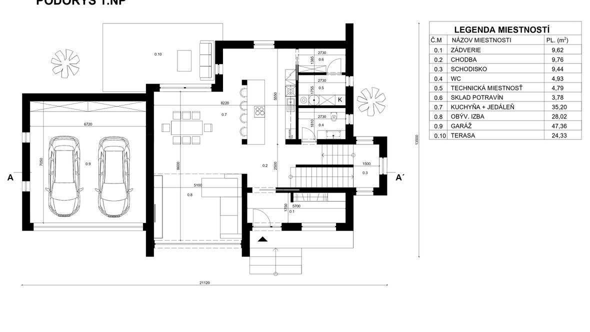
"WAVE HOUSE" - elegantný dvojpodlažný dom v industriálnom štýle, ktorý sa nachádza na pobreží Floridy, ponúkajúc výhľad na modré vlny Atlantiku. Premyslené dispozičné riešenie rozdeľuje dom na dennú(1.NP) a nočnú časť (2.NP), čo zabezpečuje prostredie na oddych a relaxáciu. Vysoké okná, naberajú denné svetlo do každého kúta, vytvárajúc útočisko plné života . Navyše strešné svetlíky a svetlovody VELUX poskytujú ďalší prúd svetla, prenikajúci hlboko do interiéru. Jeho dizajn je navrhnutý s dôrazom na funkčnosť, luxus a estetiku, čo robí z tohto domu skutočné útočisko pre tých, ktorí túžia po dokonalom spojení moderného životného štýlu a pohodlia pobrežného bývania.

















