16. ročník súťaže Rodinný Dom
2024
Jana Rácová

Názov projektu
Spoluautor projektu
Vedúci projektu
Názov školy
Rok
Opis vášho projektu
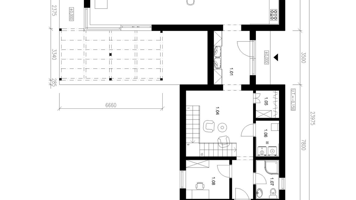
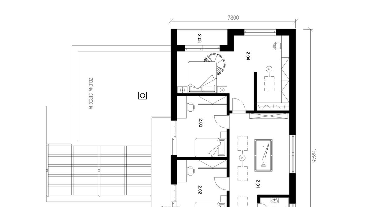
Rodinný dom VIOLA je samostatne stojací, moderný, dvojpodlažný, nepodpivničený rodinný dom unikátneho tvaru. Návrh tohto domu je situovaný na súkromnej ulici, na okraji obce Soblahov pri Trenčíne. Prvé podlažie tvorí spoločenská časť domu. Po vstupe cez hlavný vchod pokračuje spojovacia chodba, z ktorej je napravo prístupný otvorený priestor obývacej izby prepojený s jedálňou a kuchyňou. Naľavo od spojovacej chodby sa nachádzajú priestory–šatník, technická miestnosť, kúpeľňa so sprchovým kútom a wc. Do tohto priestoru vedie aj bočný vchod a dopĺňa pracovňa orientovaná do záhrady a tiež schodisko. Druhé podlažie tvorí nočná časť domu, ktorá obsahuje spálňu, 2 detské izby, väčšiu kúpeľňu s vaňou a sprchovým kútom, samostatné wc. Všetky miestnosti sú prístupné z galérie, časť ktorej slúži aj ako herňa. Hlavná spálňa má samostatný šatník a prístup na vlastný malý balkón. Nad šatníkom, chodbou a schodiskom sa nachádzajú svetlíky spoločnosti Velux. Toto podlažie je tiež obohatené o spoločný balkón, na ktorý je prístup z detských izieb i chodby. Okolie domu tvorí priestranná záhrada s bazénom, letnou terasou prístupnou z obývacej izby, ale aj priestorom určenému pre deti.
















