16. ročník súťaže Rodinný Dom
Strešný Tanec Svetla
Kristóf Horváth

Názov projektu
Spoluautor projektu
Vedúci projektu
Názov školy
Rok
Opis vášho projektu
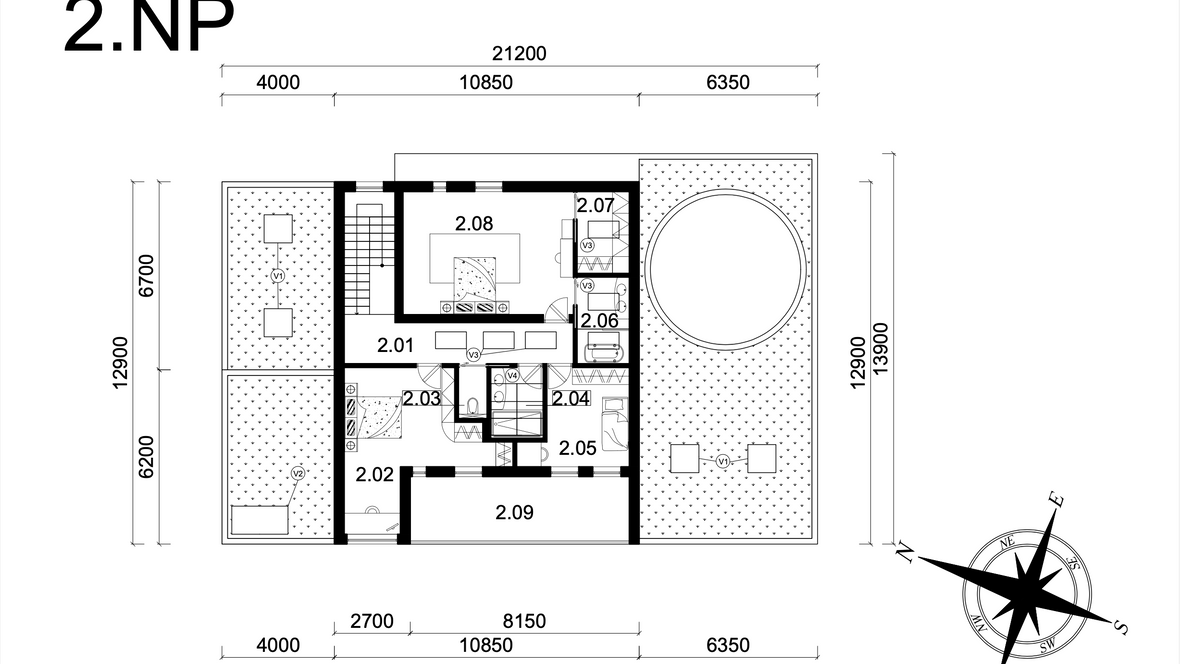
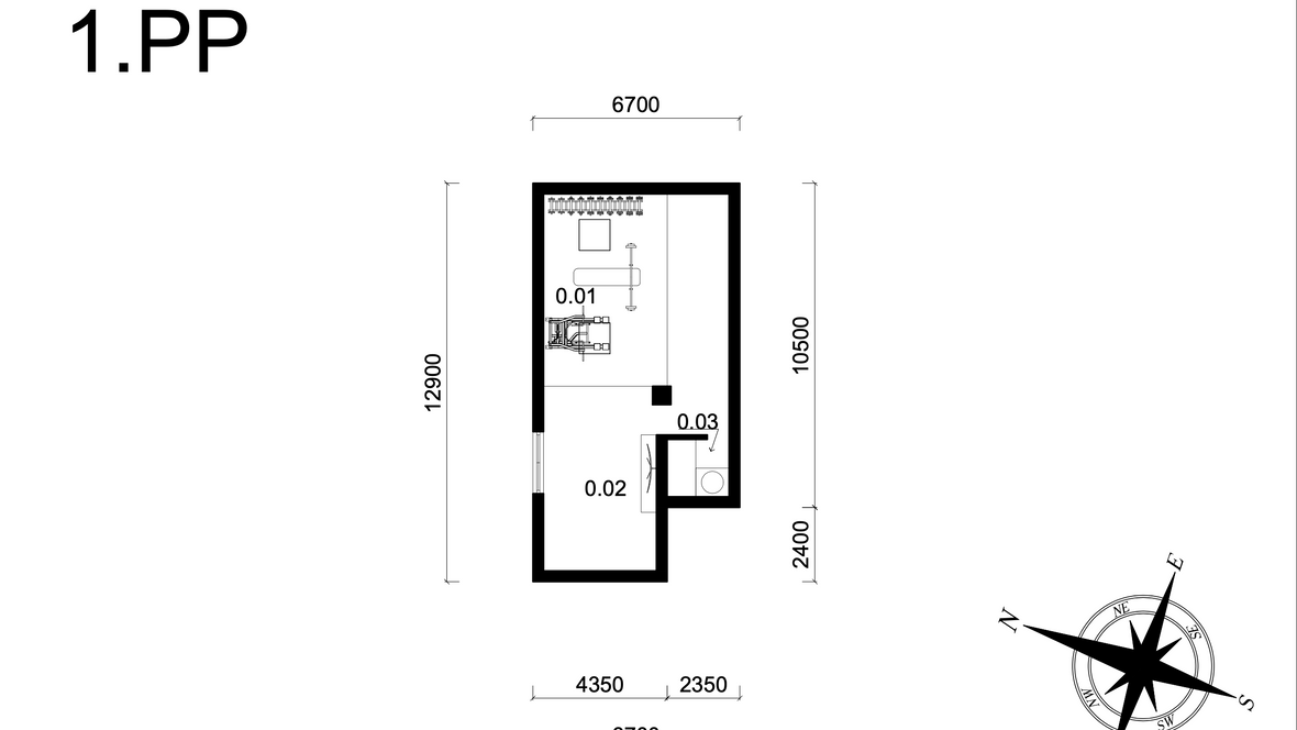
Strešný tanec svetla, tento dvojposchodový rodinný dom je štýlovým spojením moderného dizajnu a praktických prvkov. Na prvom podzemnom podlaží sa nachádza priestranná posilňovňa s nádherným osvetlením cez strešné okná, ideálne miesto na rozcvičku a relaxáciu. Na prvom nadzemnom podlaží nájdete útulnú kuchyňu s obývačkou, ktoré spolu tvoria srdce domu. Vinný sklad s elegantnými sklenenými stenami pridává dotyk luxusu, kde môžete uchovávať svoje obľúbené vína. Pracovňa je osvetlená úžasným strešným oknom Velux, a garáž disponuje dvoma strešnými oknami, čo zabezpečuje dostatok prirodzeného svetla aj vo vnútri. Na druhom nadzemnom podlaží čakajú na vás dve detské izby, kúpeľňa so štýlovým oknom Velux, samostatné WC, a pohodlná spálňa s priestranným šatníkom a ďalšia kúpeľňa s vaňou a strešnými oknami je miestom pre dokonalú relaxáciu. Okrem svojho štýlového designu je dom tiež ekologicky orientovaný, s fasádou a strechou zelených odtieňov, ktoré hostia solárne panely a prispievajú k udržateľnej energetickej spotrebe. Verím, že tento projekt nie je len reprezentáciou našich schopností a kreativity, ale aj príkladom toho, ako môžeme vytvárať inovatívne riešenia pre budúcnosť.


























