16. ročník súťaže Rodinný Dom
Trapezium
Sandra Žemberová

Názov projektu
Spoluautor projektu
Vedúci projektu
Názov školy
Rok
Opis vášho projektu
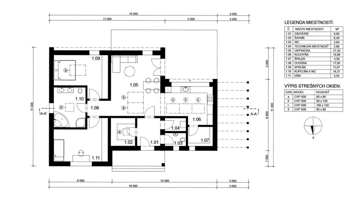
Koncept domu pracuje s prvkami moderného bývania v škandinávskych krajinách, ktorý sa však môže použiť aj na našom území vďaka jeho nadčasovému dizajnu. Hmota domu je tvorená zrezaným hranolom trapézovitého tvaru. Pôdorysný tvar je jednoduchý, bez výrazného členenia. Strecha je pultová, v nižšej časti prechádza do drevenej pergoly, ktorá slúži ako prístrešok pre auto. Do objektu sa prichádza cez prestrešené závetrie. 3-izbový dom ponúka veľké otvorené priestory priznaným šikmým stropom vo väčšine miestností. Zahŕňa otvorenú dennú časť so vstupom, hygienickým zázemím, šatníkom, špajzou a technickou miestnosťou. Ľavú časť domu tvorí nočná - oddychová zóna pre členov rodiny s veľkou kúpeľňou. Dom tak obyvateľom poskytuje pohodlné využívanie objektu bez rušivých miest. Fasádu domu tvorí betónová omietka s prvkami z borovicového dreva na prednej a zadnej strane objektu. Strešné okná VELUX dodávajú 1-podlažnému objektu dostatok denného svetla, výhľad na oblohu a v noci aj na hviezdy.









