16. ročník súťaže Rodinný Dom
SVÄNGEN
Martin Franko

Názov projektu
SVÄNGEN
Spoluautor projektu
Roman Farkaš
Vedúci projektu
Ing. arch. Katarína Lavrinčíková, PhD.
Názov školy
Stredná Priemyselná škola Stavebná a Geodetická, Drieňová 35, Bratislava
Rok
2023/2024
Opis vášho projektu
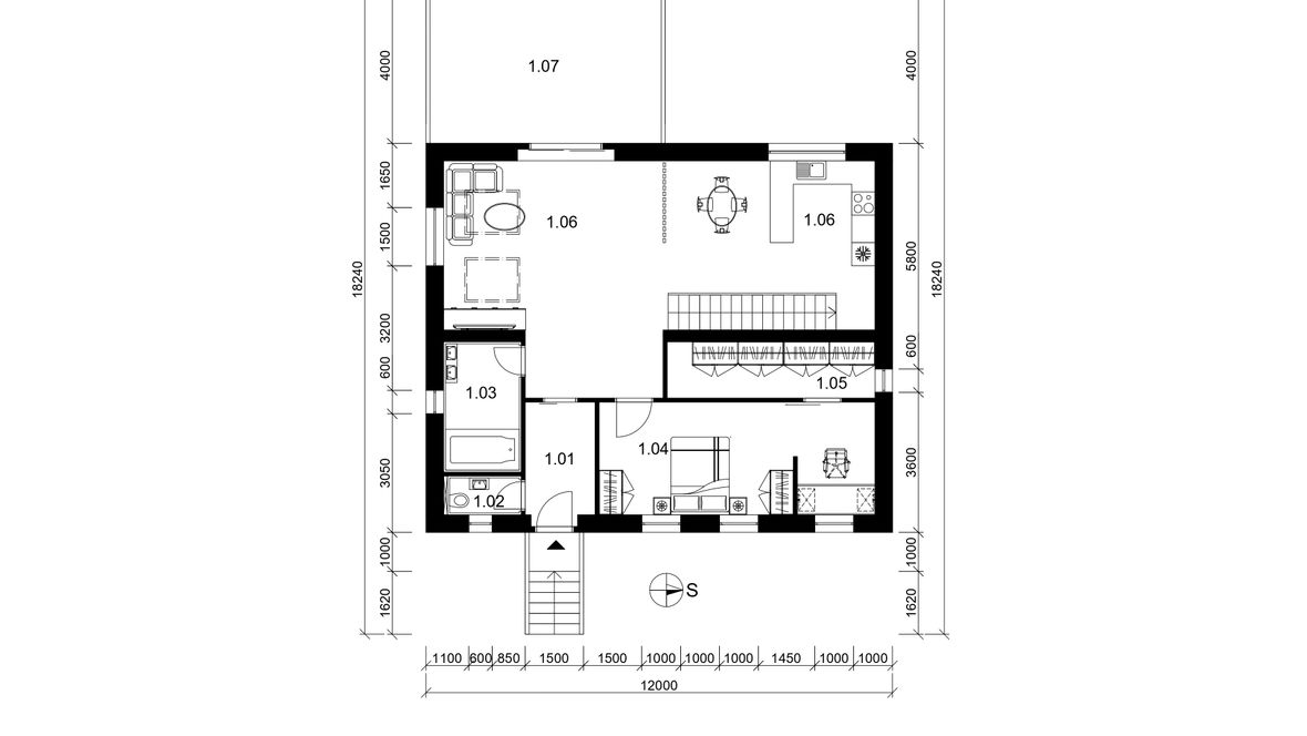
SVÄNGEN predstavuje obytný dom, ktorý sa vyznačuje inteligentným využitím strešných okien Velux GLL SK08 1064, čím vytvára spojenie medzi vnútorným komfortom domova a vonkajším prostredím. Tieto strešné okná prinášajú do interiéru dostatok prirodzeného svetla, čo zabezpečuje príjemnú atmosféru v obývacej izbe aj v detskej izbe. Dom má štyri izby navrhnuté v Japandi štýle a je rozdelený na dve podlažia s pultovou strechou. Jeho konštrukcia vychádza zo systému Porotherm 44 EKO+ PROFI DRYFIX R, čo zaručuje nielen pevnosť, ale aj energetickú účinnosť.
















