17. ročník súťaže Rodinný Dom
Clairbois
Jakub Vargan

Názov projektu
Spoluautor projektu
Vedúci projektu
Názov školy
Rok
Opis vášho projektu
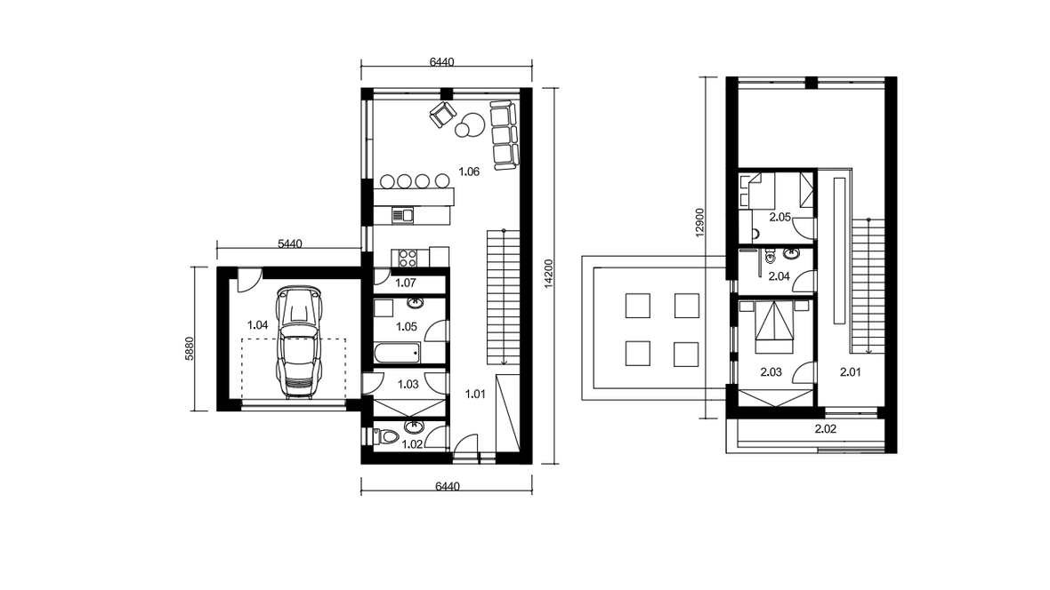
Rodinná radová, dvojpodlažná výstavba CLAIRBOIS je moderným riešením bývania, ktoré svojimi vnútornými priestormi uspokojí nároky trojčlennej rodiny. Svojím dizajnom harmonicky prepája okolitú prírodu a využíva funkčné a ekologické materiály. Denné svetlo prúdi najmä cez strešné okná, zatiaľ čo priame línie v interiéri zabezpečujú dobrú cirkuláciu vzduchu. Vstupné dvere vedú do chodby, ktorú presvetľuje svetlo zhora cez pochôdzne sklobetónové tvárnice. Nachádza sa tu aj funkčná zóna s práčovňou spojenou s kúpeľňou a WC, skladovým priestorom prepojeným s garážou a množstvom úložných priestorov. Z chodby sa prechádza do dennej časti domu — kuchyne a obývacej izby. Tá je navrhnutá s otvoreným stropom a ponúka priestor plný svetla, zelene a čerstvého vzduchu, ideálny na oddych s rodinou. Z obývacej časti je možný výstup na terasu. Po schodoch, ktoré sú dostatočne osvetlené oknami v šikmej streche, sa dostanete do nočnej časti domu. Po pravej strane sa nachádzajú dve spálne a v strede je situovaná kúpeľňa.















