17. ročník súťaže Rodinný Dom
spätý s prírodou
Sára Šedivá

Názov projektu
Spoluautor projektu
Vedúci projektu
Názov školy
Rok
Opis vášho projektu
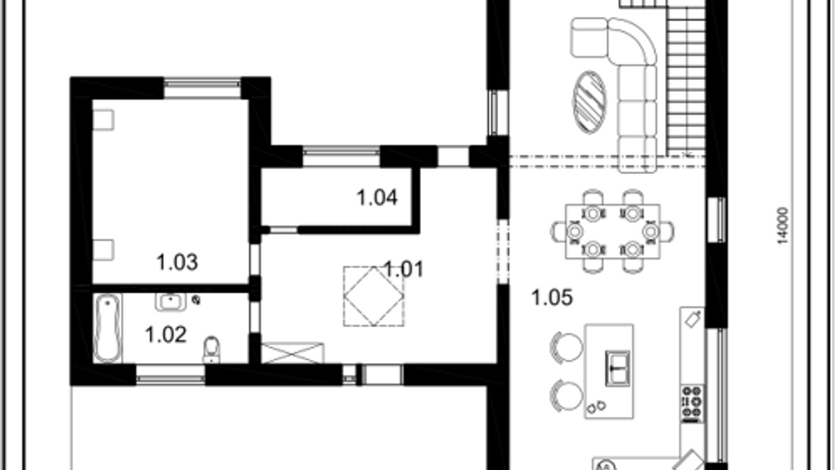
Rodinný dom je situovaný v Soblahove, je navrhovaný pre 4 osoby. Má moderný a zároveň útulný dizajn s dôrazom na prírodné materiály a farby. Skladá sa z dvoch častí, pričom prvá časť prepojuje objekt s prírodou vďake zelenej streche s extenzívnym druhom rastlín. Druhá časť presvetľuje objekt vďaka strešným oknám v pultovej streche. V interiéri dominujú drevo, kameň a zemité odtiene, ktoré harmonicky zapadajú do okolitej prírody. Dom ponúka pohodlné bývanie s dôrazom na svetlo, funkčnosť a spojenie s prírodou. Prvé podlažie domu vás privíta priestrannou centrálnou chodbou, ktorá elegantne prepája jednotlivé časti interiéru. V pravej časti domu sa nachádza komfortná spálňa s výhľadom do pokojnej záhrady, kúpeľňa vybavená vaňou a praktická technická miestnosť, zabezpečujúca všetky potreby každodenného fungovania domácnosti. Postupne sa chodba otvára do ľavej časti domu, kde sa rozprestiera spoločenský priestor – moderná kuchyňa plynulo prepojená s priestrannou obývacou izbou. Táto zóna vyniká výnimočným presvetlením vďaka oknám orientovaným na všetky svetové strany, čo vytvára príjemnú a otvorenú atmosféru po celý deň. Druhé podlažie domu je ustúpené, čo mu dodáva moderný a vzdušný charakter. Vďaka otvorenému priestoru a veľkým preskleným plochám ponúka nádherný výhľad na presvetlenú obývačku na prízemí, čím vzniká pocit prepojenosti medzi jednotlivými časťami domu. Na podlaží sa nachádza kúpeľňa vybavená sprchovacím kútom, ktorá je praktická a zároveň štýlová. Ďalej sa tu nachádzajú dve identicke detské izby. Celé poschodie pôsobí svetlo a útulne, s dôrazom na funkčnosť a súkromie.

























