17. ročník súťaže Rodinný Dom
Utópia
Terézia Ovčáriková

Názov projektu
Spoluautor projektu
Vedúci projektu
Názov školy
Rok
Opis vášho projektu
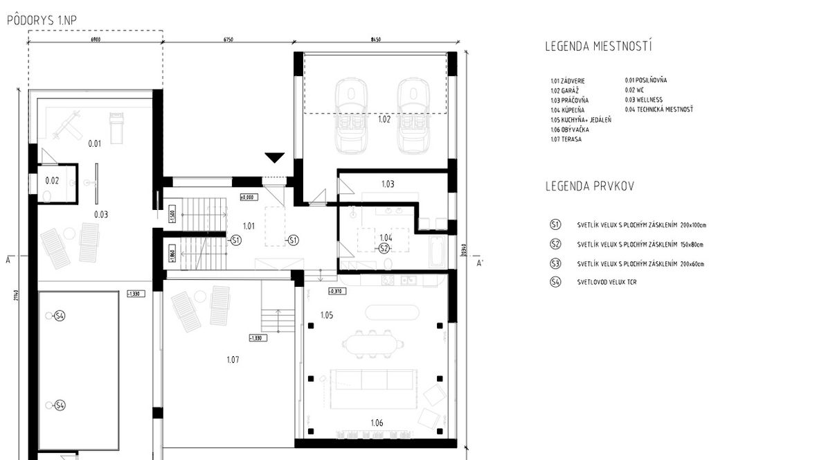
Tento moderný terénový dom je navrhnutý s dôrazom na komfort, priestrannosť a prepojenie s okolím. Disponuje viacerými úrovňami, pričom najvyššia slúži ako nočná časť, poskytujúca maximálne súkromie a pokoj. Masívna betónová konštrukcia dodáva stavbe pevnosť a moderný industriálny charakter, ktorý je vyvážený veľkým množstvom presklených plôch, vďaka čomu je interiér presvetlený a vzdušný. Dominantným prvkom domu je jeho otvorená denná zóna, kde kuchyňa, jedáleň a obývacia izba tvoria jeden prepojený celok. Z tejto časti domu je priamy výstup na terasu, rovnako ako aj z bazéna, čím sa vytvára plynulé spojenie medzi interiérom a exteriérom. Terasa nadväzuje na záhradu, čím ponúka ideálne miesto na oddych a spoločenské stretnutia. Pre aktívny životný štýl je súčasťou domu aj moderné fitness centrum. Tento dom je ideálnym spojením funkčnosti, estetiky a pohodlia, pričom dokonale rešpektuje terén a okolitú prírodu.


























