18. ročník soutěže King of daylight / Freestyle
RODINNÁ HORSKÁ CHATA DOLORE
Martina Laresová

Název projektu
RODINNÁ HORSKÁ CHATA DOLORE
Vedoucí projektu
Ing. Tomáš Fischer
Název školy
Střední průmyslová škola stavební Opava, p. o.
Rok
2022
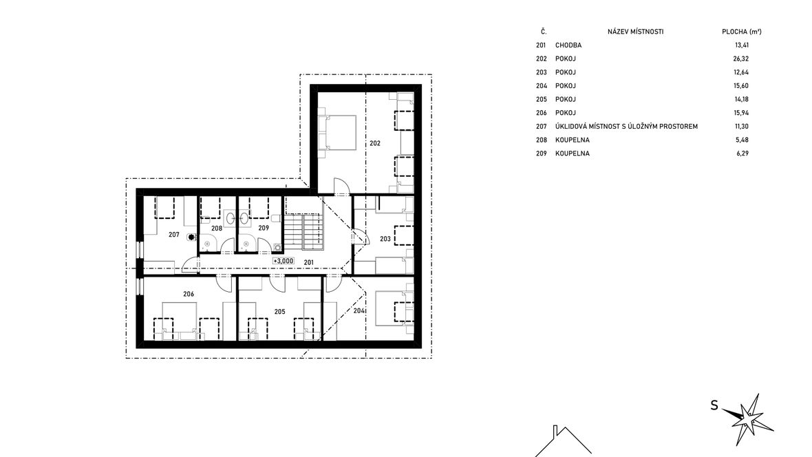
Popis projektu
HLAVNÍ MYŠLENKA: Snažila jsem se vytvořit útulnou chatu v horském prostředí, kterou si může pronajmout více osob a strávit zde příjemné chvilky s rodinou či přáteli nebo uspořádat nějakou akci. ARCHITEKTONICKÉ A DISPOZIČNÍ ŘEŠENÍ: Jedná se o dvoupodlažní objekt se sedlovou střechou. Zčásti předsazené druhé podlaží vytváří krytou terasu. Přízemí, zahrnující kuchyň, jídelnu, obývací pokoj a relaxační místnost, je vyhrazeno společenské zóně. V obytném podkroví jsou umístěny čtyři dvoulůžkové pokoje, jeden čtyřlůžkový pokoj a hygienické zázemí. MATERIÁLOVÉ ŘEŠENÍ: Materiály jsou voleny ve světlých a přírodních barvách. Výjimkou nejsou ani střešní okna VELUX GLL 1061B s dřevěnou vnitřní úpravou.













