18. ročník soutěže King of daylight / Freestyle
Knihovna
Ondřej Tálský

Název projektu
Vedoucí projektu
Název školy
Rok
Popis projektu
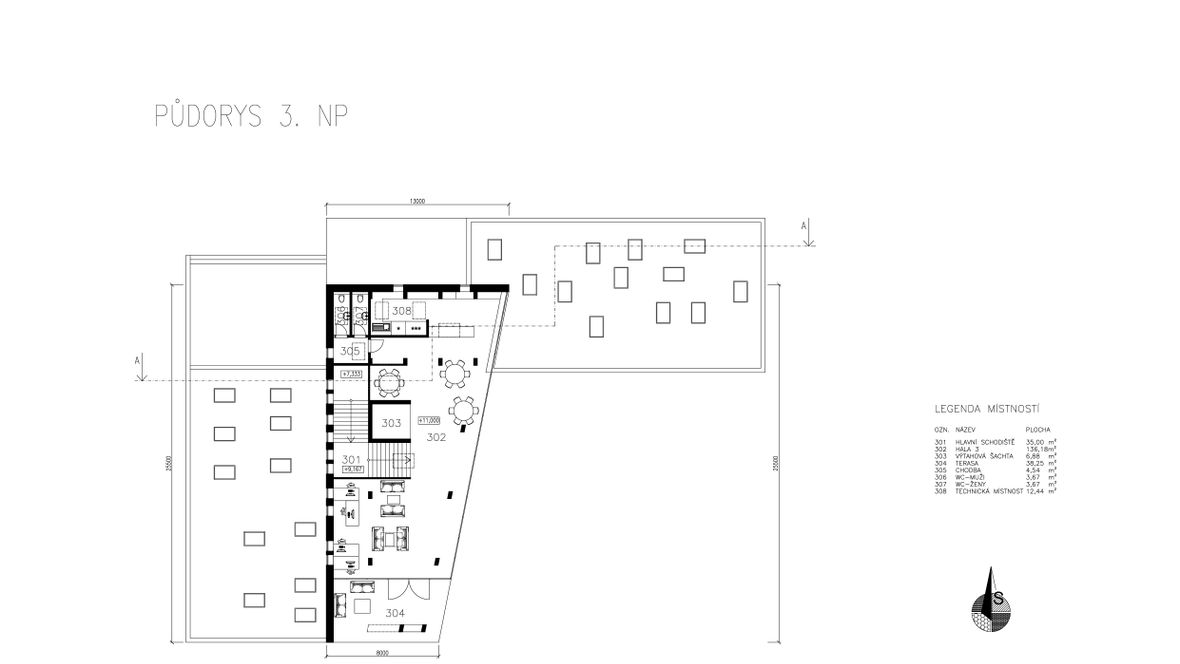
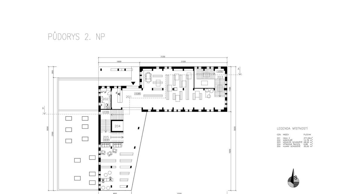
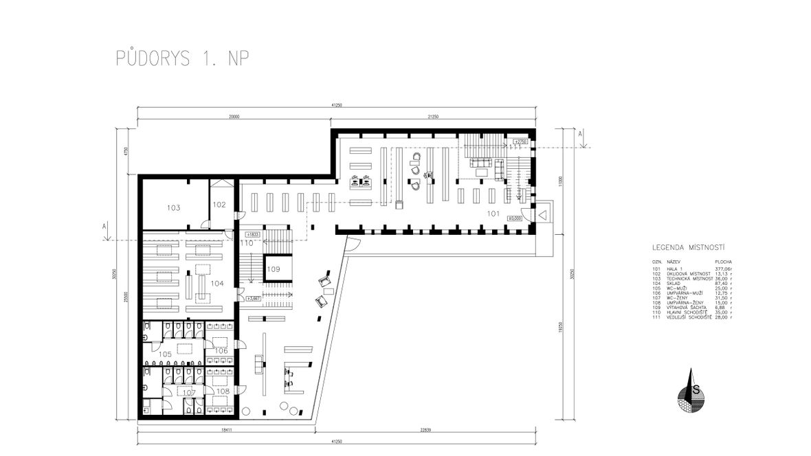
Jedná se o trojpodlažní budovu, půdorys má tvar nepravidelného mnohoúhelníku. První dvě podlaží jsou určena pro prostor knihovny, který je v nejvyšším podlaží doplněn o malou kavárnu. 2. a 3. nadzemní podlaží jsou provedeny jako ustupující, nad 1. a 2. NP se nachází intenzivní zelená střecha, nad 3. NP šikmá jednoplášťová střecha. Přívod denního světla a čerstvého vzduchu do objektu je zajištěn světlíky Velux v kombinaci s fasádními okny. V exteriéru převládá bílá fasádní barva, kterou doplňují černé prvky a sloupy v barvě betonu a červené. V interiéru je použita bílá omítka v kombinaci s režnými železobetonovými sloupy a prvky z přírodního dřeva. Konstrukce stavby je částečně skeletová z monolitického železobetonu, sloupy jsou ponechány jako režné, stropy jsou železobetonové monolitické tloušťky 250 mm, obvodový plášť je tvořen zdivem Porotherm tloušťky 500 mm a z části prosklenou fasádou.














