18. ročník soutěže King of daylight / Freestyle
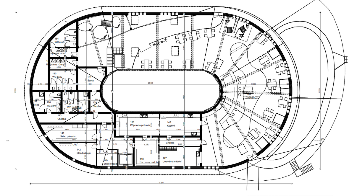
ZOO Jihlava - Údolí primátů
Adéla Sedlmajerová

Název projektu
ZOO Jihlava - Údolí primátů
Vedoucí projektu
Ing. arch. Vít Wasserbauer
Název školy
Střední průmyslová škola stavební akademika Stanislava Bechyně Havlíčkův Brod
Rok
2021/2022
Popis projektu
Ročníkový projekt na Střední průmyslové škole stavební ak. Stanislava Bechyně v Havlíčkově Brodě.










