18. ročník soutěže King of daylight / Rodinný Dům
Rodinný dům
Jan Tkáč

Vedoucí projektu
Ing. Iva Polochová
Název školy
Střední škola stavební Ostrava
Rok
2022
Popis projektu
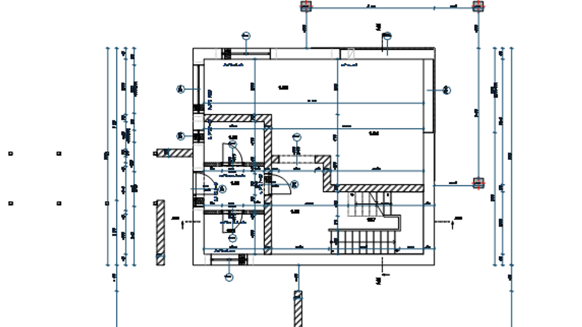
Tento rodinný dům byl navržen pro rodiny s dětmi. Dům je rozdělen do dvou obytných pater. V přízemí se nachází obývací pokoj společně s kuchyní, technickou místností, malým WC a zádveřím. V druhém podlaží jsou obytné místnosti ,jako například dva dětské pokoje, ložnice a koupelna. Na střeše jsou umístěny střešní okna VELUX. Vzhled tohoto domu je moderní a zapadá do designu 21.století.







