18. ročník soutěže King of daylight / Rodinný Dům
RD Blanka
Adam Maňhal

Název projektu
RD Blanka
Vedoucí projektu
Ing. arch. Jiří Mysliveček
Název školy
Střední průmyslová škola stavební, Resslova 2 (č.p. 1579), 372 11 České Budějovice
Rok
2022
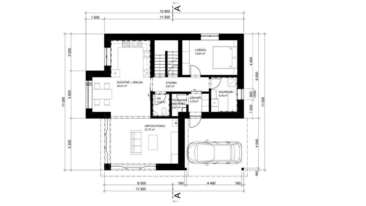
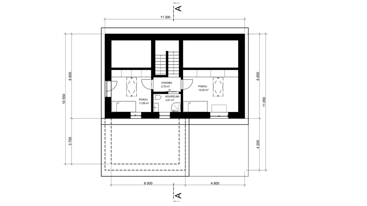
Popis projektu
Dvoupodlažní rodinný dům Blanka nabízí příjemné prostředí vhodné pro 4 až 5 člennou rodinu. Svou velikostí se řadí mezi střední rodinné domy vhodné i do mírně svažitého terénu. Hlavním vchodem, přes šatnu se vstupem do technické místnosti, se lze dostat do chodby. Odtud je pak snadný přístup do okolních místností. V přízemí se nachází ložnice, koupelna a oddělené wc, obývací pokoj spojený s kuchyní a jídelnou a také technická místnost. Obývací pokoj má přístup na terasu. Obytný prostor v podkroví je využit pro 2 pokoje a koupelnu. Před vchodem do domu je také zastřešené prostorné stání pro jeden osobní automobil. Svým charakterem dům splní požadavky na moderní bydlení v souladu s přírodou.






