18. ročník soutěže King of daylight / Rodinný Dům
RD MÁJA
Martin Jaroš

Název projektu
Vedoucí projektu
Název školy
Rok
Popis projektu
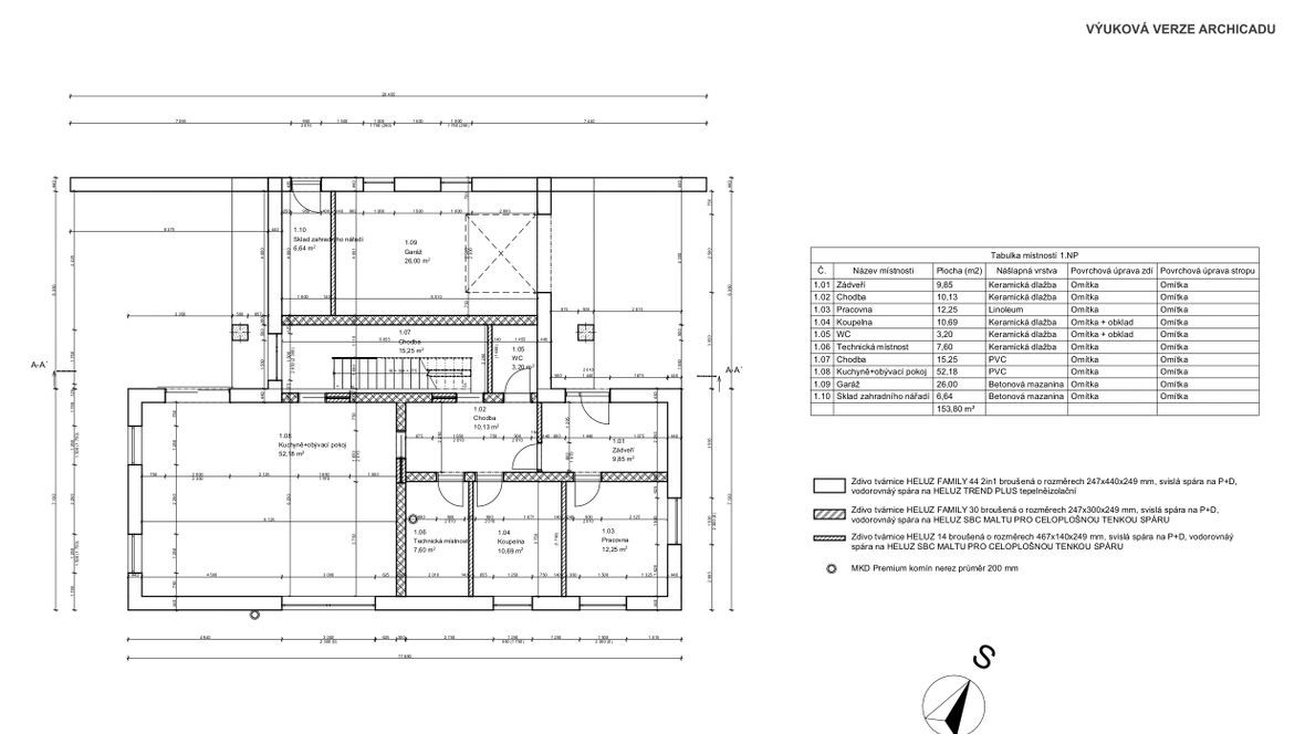
Hlavní myšlenka: Cílem celého projektu bylo vytvořit návrh moderního rodinného domu, který by dokonale zapadl do nové moderní zástavby v Havlíčkově Brodě. Dále zde byla snaha o co největší využití denního světla a to i za pomocí světlíku VELUX. Architektonické a technické řešení: Jednogenerační rodinný dům s plochou střechou a se dvěma nadzemními podlažími. Dům je navržen ze systému firmy HELUZ a pro získání většího množství denního světla slouží světlík firmy VELUX. Svojí dispozicí vyhovuje dům 4-5členné rodině. Nachází se v něm pět obytných místností, přičemž 5., obývací místnost, je propojená s jídelnou a kuchyní. V prvním nadzemním podlaží se nachází pracovna, technická místnost, sklad zahradního nářadí a garáž pro jeden osobní automobil. V každém ze dvou podlaží je umístěna koupelna, v prvním podlaží i samostatné WC. Vstup je orientován na severozápad. Chodba ve druhém nadzemním podlaží je obohacena o designový světlík VELUX se zaobleným sklem 120x120 cm. Ten umožňuje maximální prosvětlení a prostupnost denního světla (88 %). Z chodby ve druhém nadzemním podlaží je možné vstoupit do dvou dětských pokojů, ložnice a koupelny.

















