18. ročník soutěže King of daylight / Rodinný Dům
Rodinný dům pro klidné a pohodlné bydlení
Matyáš Bazala

Název projektu
Rodinný dům pro klidné a pohodlné bydlení
Vedoucí projektu
ING. Iva Polochová
Název školy
SPŠ stavební Ostrava
Rok
2022
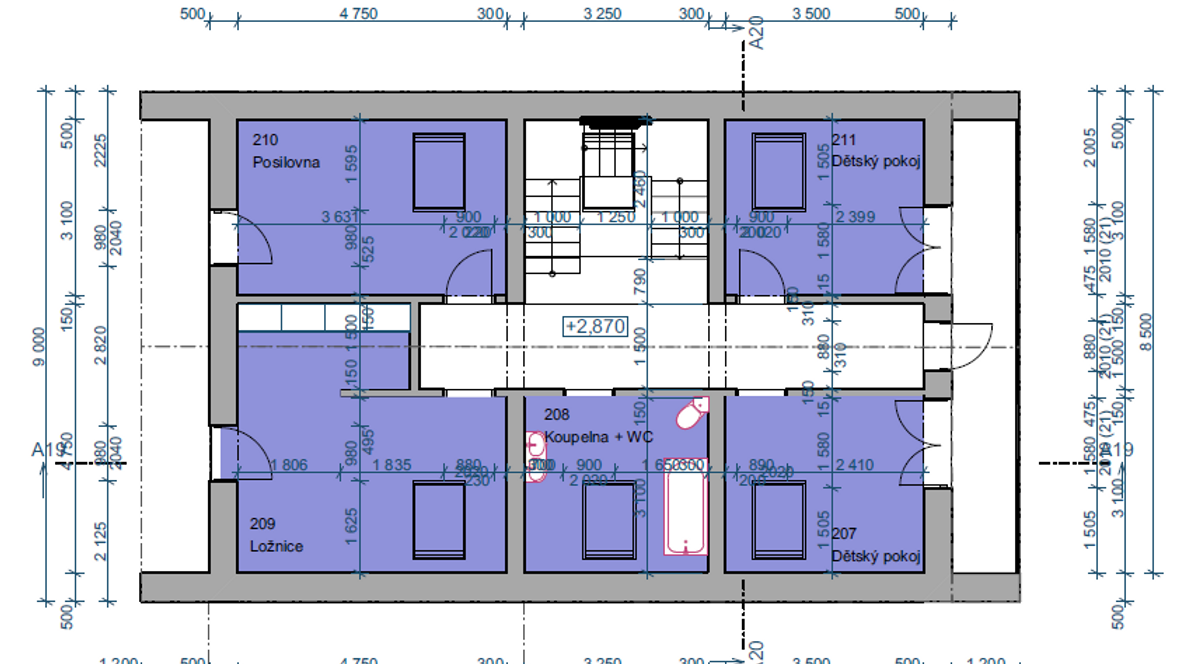
Popis projektu
Mým cílem bylo vytvořit co nejpříjemnější bydlení pro rodinu. V 1NP se nachází obývací pokoj s kuchyňským koutem, pracovna, koupelna+wc, technická místnost a schodiště do 2NP. V druhém podlaží jsou 3 obytné místnosti, které jsou opatřeny stěnou s protizvukovou izolací pro co největší klid a soukromí, posilovna, koupelna+wc. Stavba je umístěna v klidné oblasti s výhledem na Beskydské Pustevny.







