18. ročník soutěže King of daylight / Rodinný Dům
Rodinný dům "Samota u Lesa"
Jan Novotný

Název projektu
Rodinný dům "Samota u Lesa"
Vedoucí projektu
Ing. Kateřina Janoušková
Název školy
Střední odborná škola a Gymnázium Staré Město
Rok
2021/2022
Popis projektu
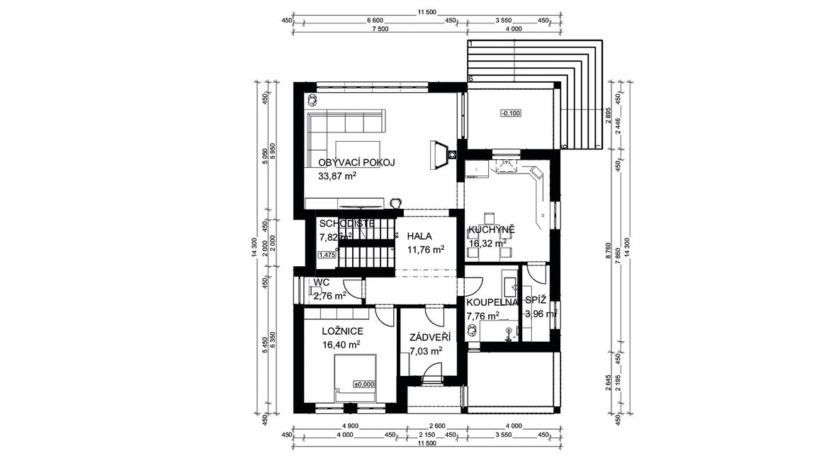
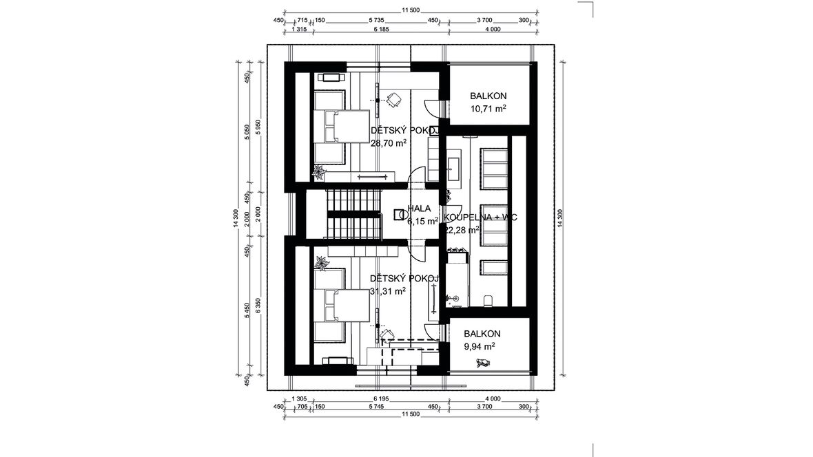
Návrh rodinného domu je v pastelových barvách, aby více splynul s okolním prostředím. Dům je umístěn v mírně svažitém terénu. Dostatek světla v 2NP zajišťuje 7 střešních oken Velux a 1 světlovod Velux. Dům je částečně podsklepen a součástí 1S je garáž pro jeden automobil.







