19. ročník soutěže King of daylight / Freestyle - 3. místo
016
Barbora Kocmanová

Název projektu
016
Vedoucí projektu
Ing. arch. Jiří ŠNERCH
Název školy
Střední škola stavební Třebíč
Rok
2023
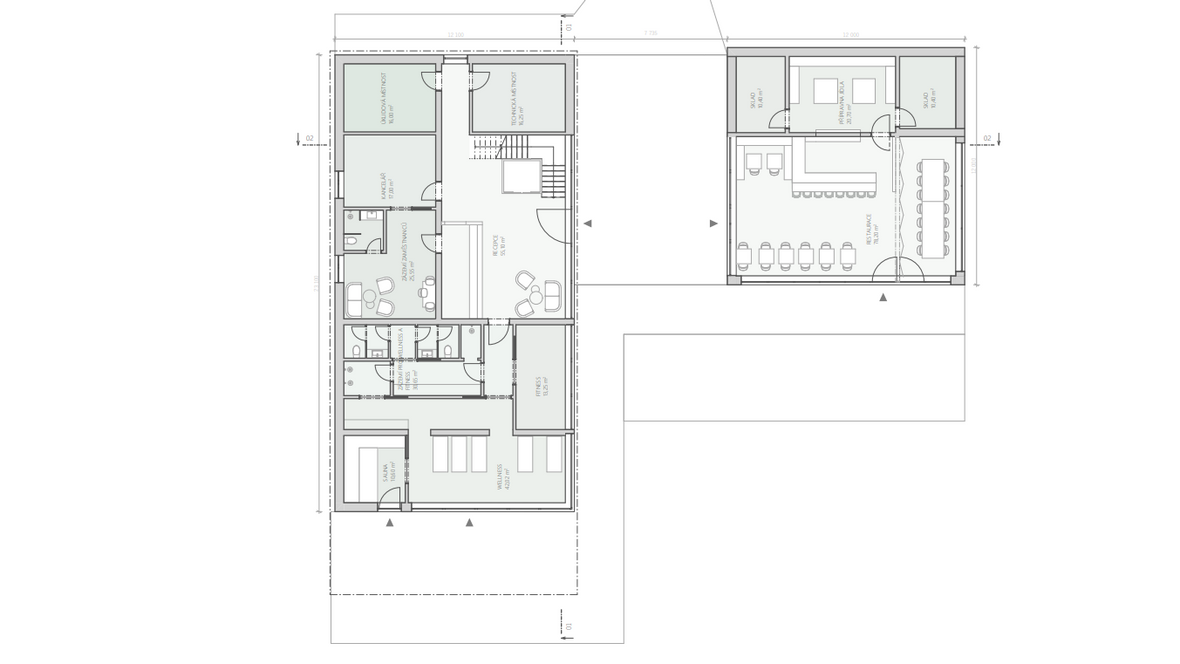
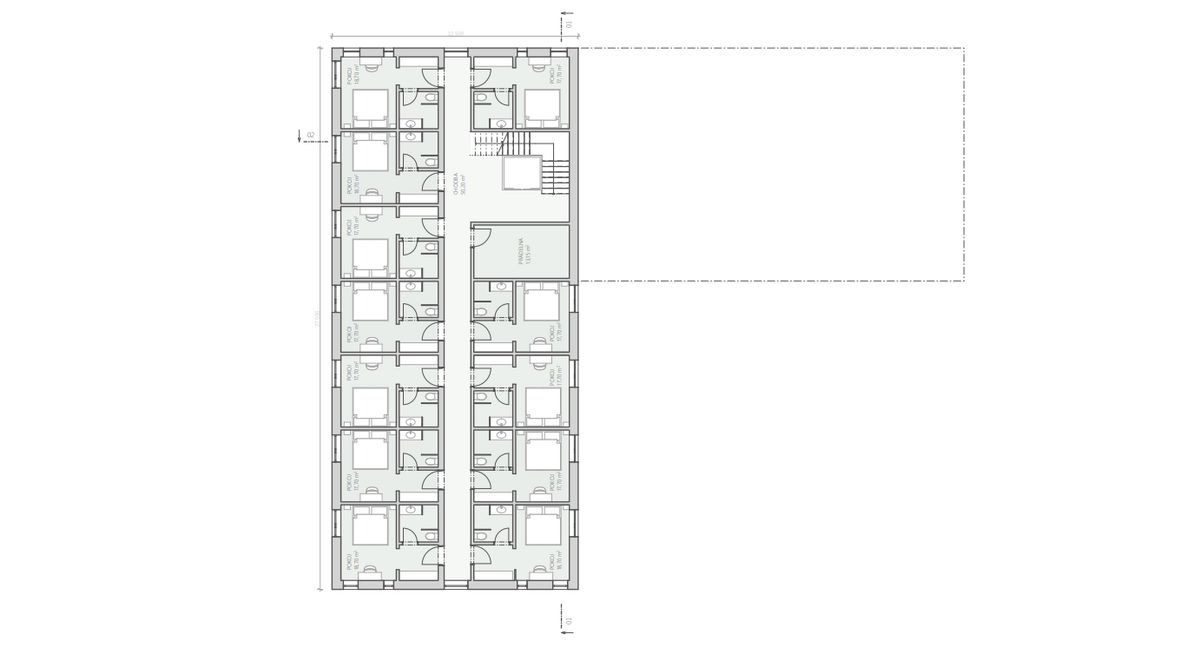
Popis projektu
Projekt 016 se nachází v areálu Stvořidla. Slouží pro rekreační účely. Areál nabízí hotelové ubytování pro 40 osob, wellness, posilovnu, restauraci, ubytování v chatkách pro 2 - 8 osob, minigolf a mnoho další. Chodbou posledního parta hotelu nás doprovází celkem 8 světlíků Velux. Všechny chaty jsou v podkroví osvětleny střešními Velux okny.


















