19. ročník soutěže King of daylight / Freestyle
Stvořidla
Eduard Mittner

Název projektu
Vedoucí projektu
Název školy
Rok
Popis projektu
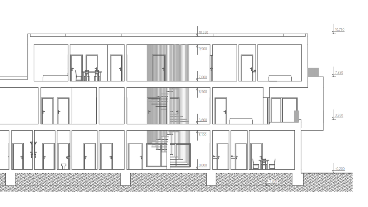
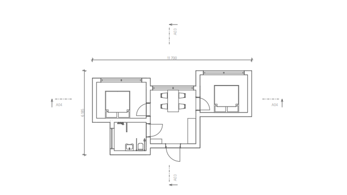
Koncept Budova rekreačního střediska Stvořidla vznikala postupným rozdělováním výchozí jednolité kvádrové hmoty. Z té byla nejprve vyčleněna a následně dotvarována tři podlaží, čímž budova dosáhla své organické podoby. Podlahová plocha jednotlivých podlaží se směrem od přízemí nahoru zmenšuje. Středobodem celé stavby propojujícím všechna podlaží je točité schodiště prosvětlené přirozeným světlem vstupujícím do prostoru střešním kruhovým světlíkem. Každé podlaží je konceptuálně navrženo tak, aby byl každý funkční prostor přístupný ze samotného jádra budovy tvořeného centrálním točitým schodištěm. I přesto, že má stavba navenek velmi členitý a strukturovaný vzhled, působí interiéry jednoduchým a praktickým dojmem. Prostor vzniklý strukturováním jednotlivých podlaží navíc umožnil vytvoření teras, jež jsou rozdělené organicky tvarovaným zábradlím na využitelnou rekreační část a zatravněnou plochu zpříjemňující okolní prostředí. První podlaží slouží jako společné zázemí pro hosty střediska. Nachází se zde restaurace, společenská místnost či wellness centrum. Zbylá dvě podlaží pak tvoří obytný prostor s jednotlivými pokoji. Použité světlíky: CFU, CVU, ISU 2093 - prosvětlují velkou část wellness a třetího podlaží kruhový světlík - prosvětluje točité schodiště



















