19. ročník soutěže King of daylight / Freestyle
Hotel Atrium
Michal Novák

Název projektu
Vedoucí projektu
Název školy
Rok
Popis projektu
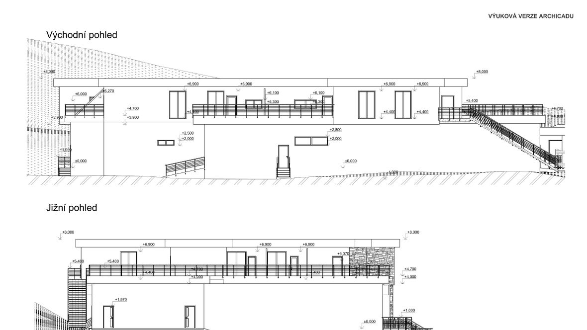
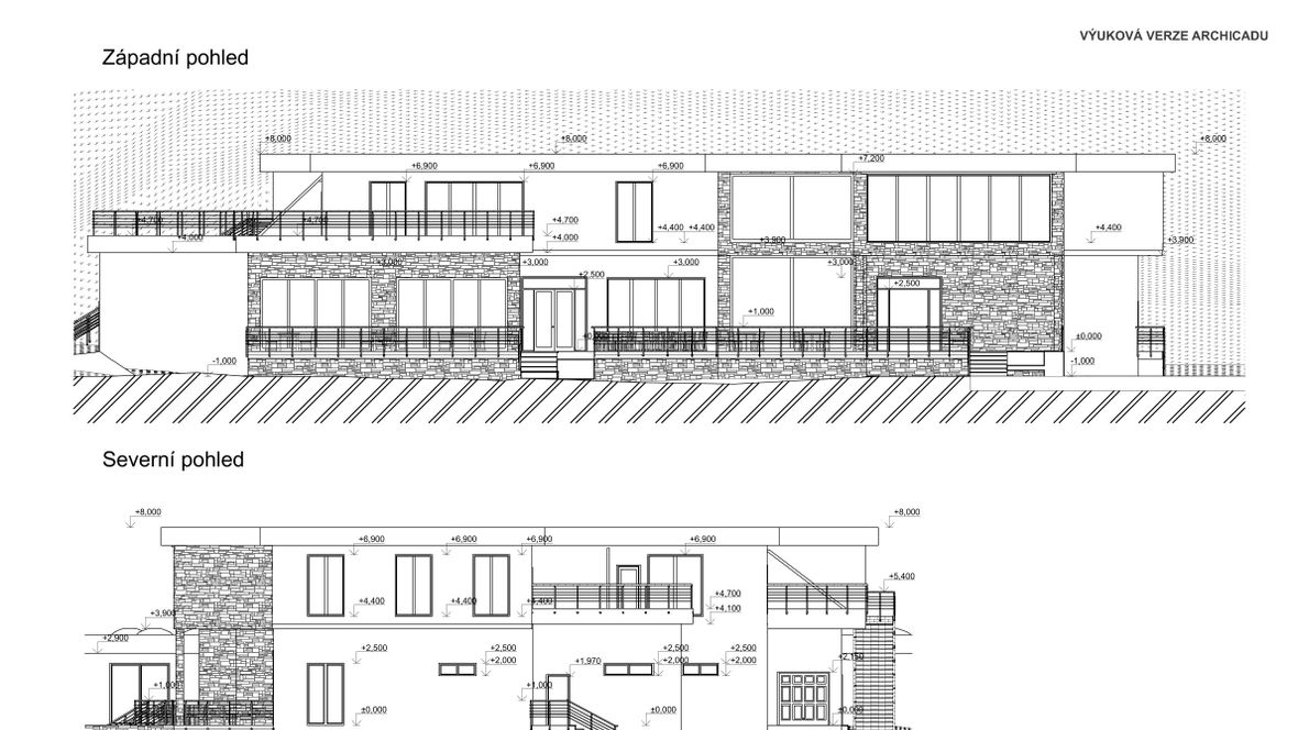
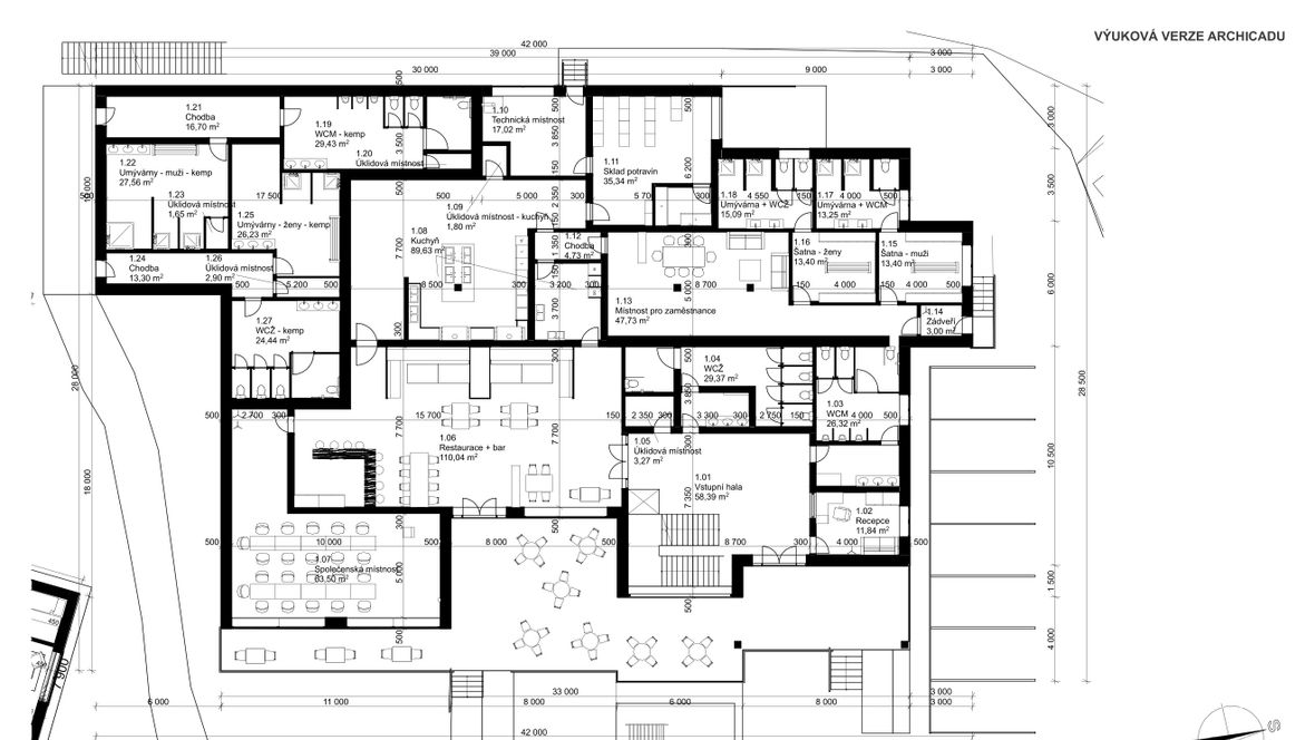
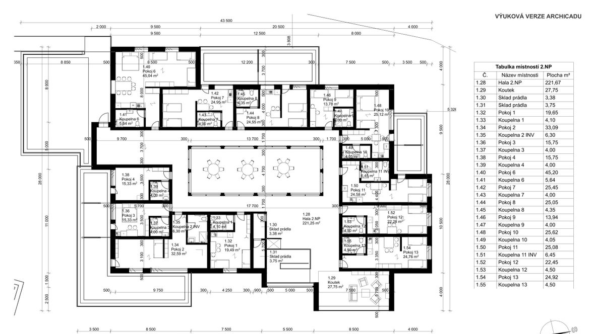
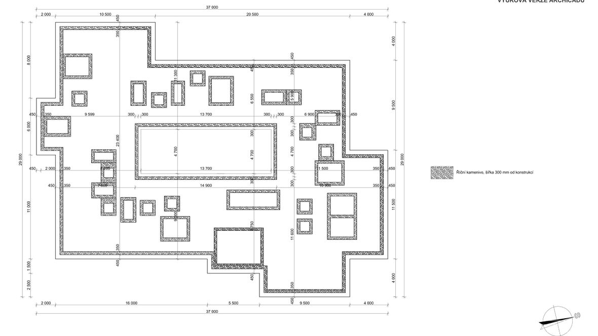
Katastrální území: Dobrovítova Lhota [768782] Parcela: 108/6 Objekt se nachází na řece Sázava, v obci Trpišovice, nedaleko města Ledeč nad Sázavou, plní funkci rekreačního střediska s parkovištěm a ubytováním. V 1. NP budovy se nachází vstupní hala s recepcí, dále WC, úklidová místnost , schodiště s výtahem pro invalidy, restaurace, kuchyň, společenská místnost, zázemí pro zaměstnance, sprchy, WC pro zaměstnance, sklad potravin a technická místnost. Dále je k hlavní budově z jižní strany připojena budova umýváren a WC pro kemp. V 2. NP se nachází pokoje pro 42 hostů, odpočívací kout s knihovnou a prosklené atrium. Z některých pokojů je přístup na vegetační terasu. Mimo jiné se krom hlavního schodiště ve 2. NP nachází i únikový požární východ. Budova je postavena v moderním stylu. Plochá vegetační střecha napomáhá k obnovení zeleně, která byla touto stavbou zastavěna, světlíky prosvětlují vnitřní prostor. Budova je celkově velmi prosklená a prosvětlená.













