19. ročník soutěže King of daylight / Freestyle
Občanská budova Liberty
Ondřej Gelnar

Název projektu
Občanská budova Liberty
Vedoucí projektu
Ing. Iva Polochová
Název školy
Střední průmyslová škola stavební Ostrava-Zábřeh
Rok
2023
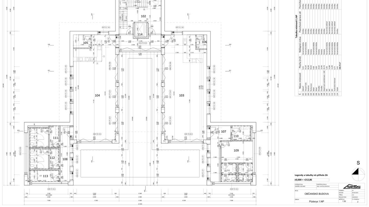
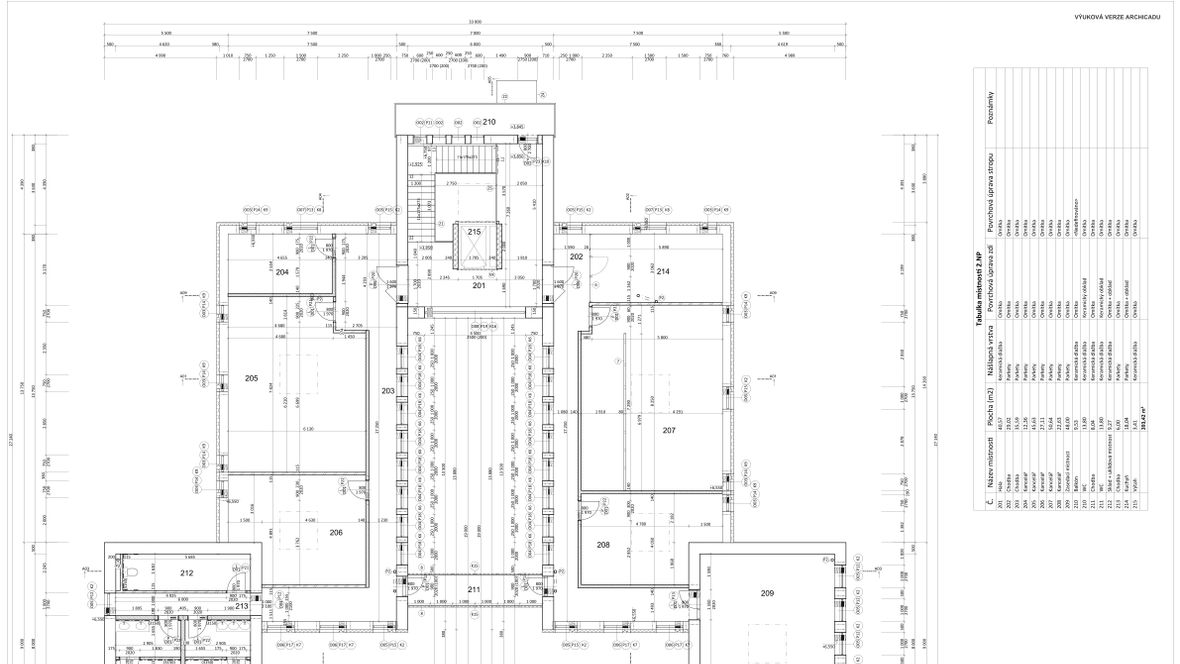
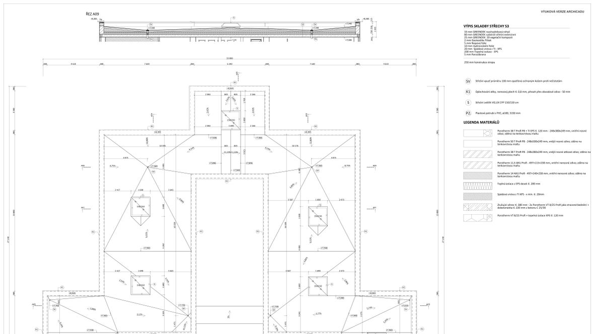
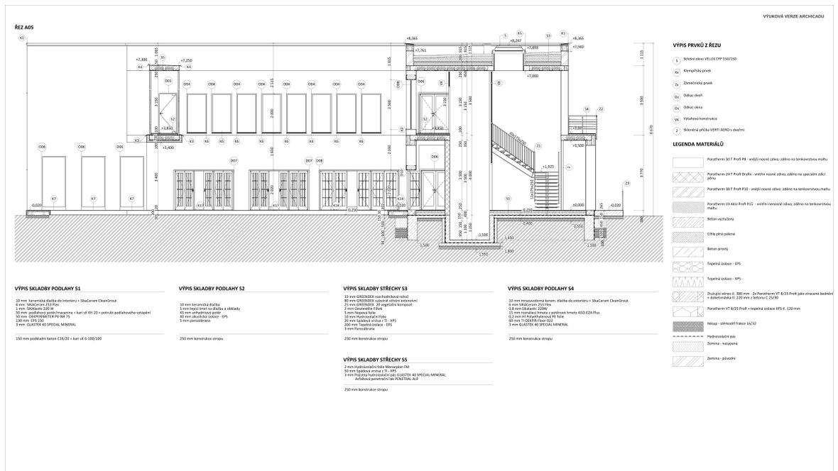
Popis projektu
Záměrem projektu bylo vytvořit dvoupodlažní občanskou budovu, která bude v maximalním rozsahu prosluněná přírozeným světlem s možností výstupu do exteriéru. Budova je rozdělena na 2 podlaží, přičemž 1.NP poskytuje prostory pro kávárnu a restauraci, které budou přístupné veřejnosti. 2.NP je určeno pro soukromou administrativní firmu. Proslunění je zajištění velkoformátovými okny, které jsou orientovány na všechny 4 světové strany a světlíky VELUX. Ve střešní konstrukci se nachází 6 střešních světlíků VELUX CXP 150/150, které prosvětlují všechny místnosti v 2.NP, kde se počítá se stálým pohybem lidí.



















