19. ročník soutěže King of daylight / Freestyle
REZIDENCE KVĚTNICE
Bára Machálková

Název projektu
Vedoucí projektu
Název školy
Rok
Popis projektu
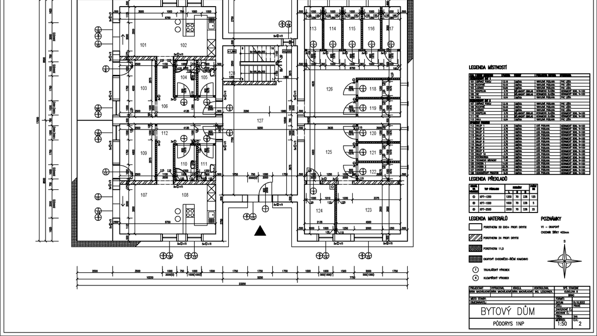
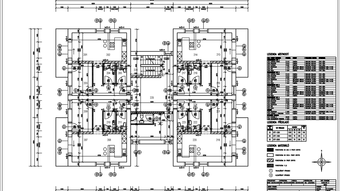
HLAVNÍ MYŠLENKA Vlastní bydlení se stává nedostupnější pro čím dál větší část české populace. Já jsem se rozhodla ve svém projektu zaměřit na mladé bezdětné páry a invalidní spoluobčany. Důraz jsem také kladla na kontakt s přírodou a na příjemné klima pod vzrostlou parkovou zelení, zejména v letních měsících. ARCHITEKTONICKÁ ČÁST Ke každému bytovému domu náleží 10 parkovacích míst, z toho dvě z nich jsou určena pro invalidní spoluobčany. Hlavní vstup na rezidenční parcelu je umístěn na severovýchodní straně, ta je pak propojena s veřejnou komunikací ulice Květnická. Nezastavěná část parcely je využita na výstavbu nového městského veřejného parku. Samostatně stojící bytové domy jsou ve tvaru písmene „H“ a mají tři nadzemní podlaží. První nadzemní podlaží o dvou bytových jednotkách je bezbariérové, je zde také deset sklepních kójí, kočárkárna a technická místnost. Druhé i třetí podlaží je zpracováno tak, aby poskytlo pohodlný život pro bezdětné páry či studenty, v obou patrech se nachází i ateliér pro pracovní účely, byty zde umístěné mají balkóny.













