19. ročník soutěže King of daylight / Freestyle
Atelier GRADATIO
Růžena Mackovíková

Název projektu
Atelier GRADATIO
Vedoucí projektu
Ing. Iva Polochová
Název školy
SPŠ Stavební Ostrava
Rok
2023
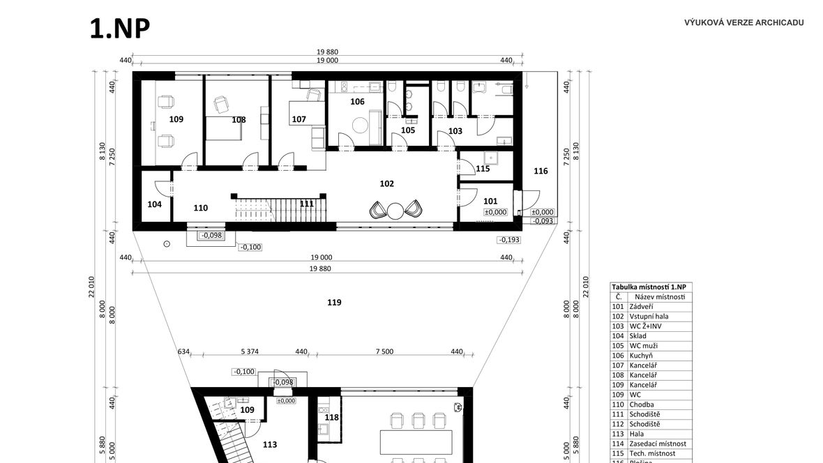
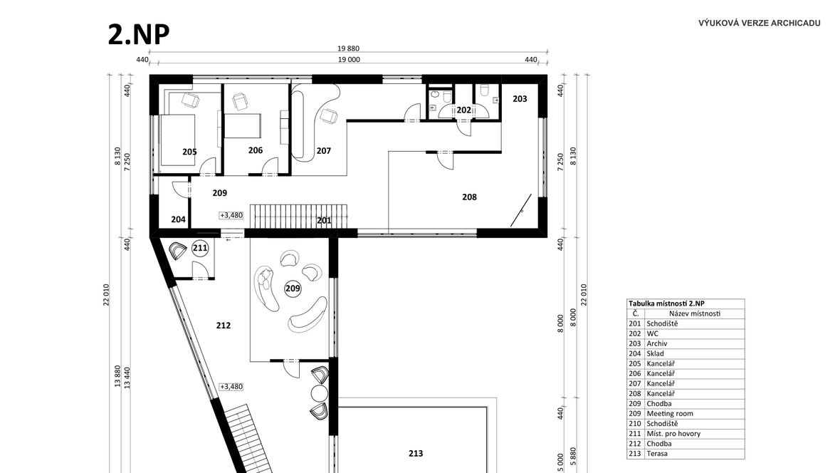
Popis projektu
Atelier GRADATIO je sestaven ze tří částí, které na sebe jednotlivě navazují a svou výškou tzv. gradují. Záměrem bylo propojit přírodní materiály s živou zelení a nepostradatelným přirozeným světlem mezi kanceláře architektů. Bezbariérový vstup do ateliéru zpřístupňuje klientům možnosti projednávání projektů celkem v 6 kancelářích a 3 meetingových místnostech. Stavba je provedena v systému Porotherm v kombinaci se skleněnými rámovými příčkami od značky Verti. Ateliér disponuje především spojovací chodbou prosvětlenou velkoformátovými okny a střešními světlíky značky Velux.



















