19. ročník soutěže King of daylight / Rodinný Dům - 2. místo
RD Phineas
David Daněk

Název projektu
Vedoucí projektu
Název školy
Rok
Popis projektu
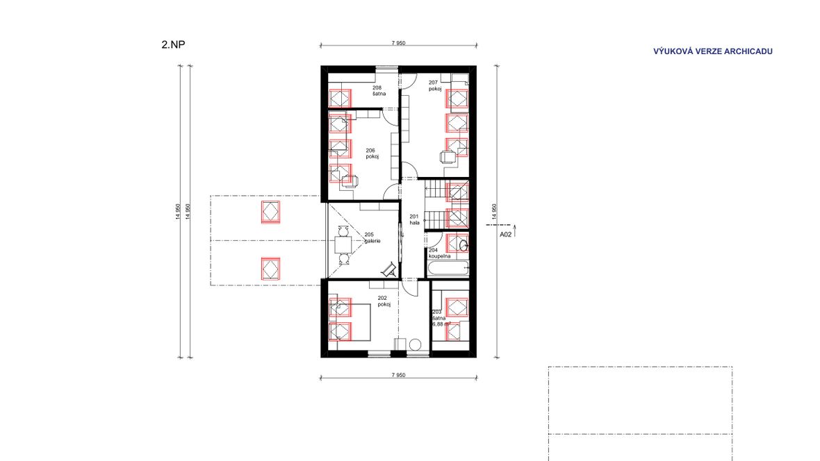
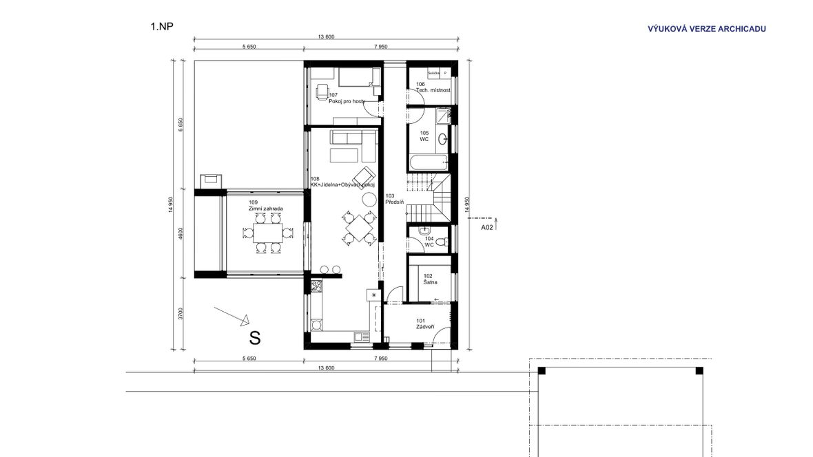
MYŠLENKA: Mým cílem bylo vytvořit dvoupodlažní rodinný dům pro čtyřčlennou rodinu s vnitřním prostorem, který je celodenně prosvětlen a bude příjemným a pohodlným prostředím pro život celé rodiny. ARCHITEKTONICKÉ A DISPOZIČNÍ ŘEŠENÍ Rodinný dům s půdorysem ve tvaru písmene T je zastřešen sedlovou střechou a provozně je rozdělen na dvě části. První je společenská část, nacházející se v 1.NP. Na jižní straně se nachází kuchyně s jídelnou a obývacím pokojem, ke kterému je připojena zimní zahrada. Na severní straně je vstup, schodiště a zázemí RD – koupelna a WC. Druhá je soukromá obytná část, nacházející se ve 2.NP - zde je galerie, otevřená do spodního obytného prostoru, chodba a dva pokoje, ložnice a koupelna s WC. Všechny pokoje jsou vybaveny vlastní šatnou. Minimalistického architektonického výrazu objektu je dosaženo pomocí dřevěného obložení, pokrývajícího celou fasádu. Výrazným prvkem je majestátní štítová prosklená stěna, směřující do zimní zahrady ŘEŠENÍ PROSVĚTLENÍ K prosvětlení společenských místností domu slouží francouzská okna, nacházející se na jižní fasádě, která jsou vybavena roletami s automatickým stíněním. Ta prosvětlují obývací pokoj s kuchyní a jídelnou, stejně tak i zimní zahradu a pokoj pro hosty. K dodatečnému prosvětlení druhého podlaží slouží střešní okna Velux GLL. Informace o prosvětlení pochází z programu Daylight Visualizer.














