19. ročník soutěže King of daylight / Rodinný Dům
Stavba rodinného domu
Radim Sobotka

Název projektu
Stavba rodinného domu
Vedoucí projektu
Ing. arch. Rostislav Vondra
Název školy
Střední průmyslová škola stavební akademika Stanislava Bechyně, Havlíčkův Brod, Jihlavská 628
Rok
2023
Popis projektu
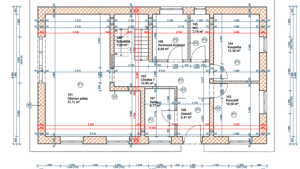
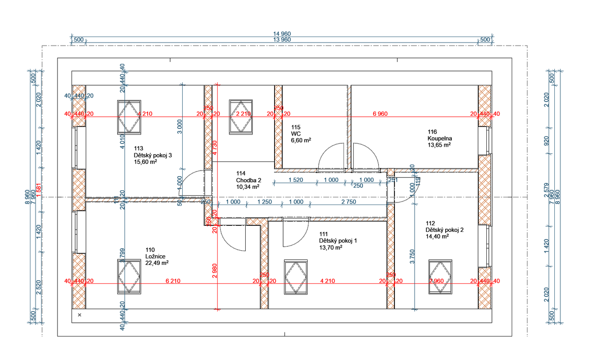
Mým záměrem bylo navrhnout rodinný dům pro 4 osoby, který leží na pozemku 659/70 v Havlíčkově Brodě. Vybral jsem si dvoupodlažní dům se sedlovou střechou, na kterou jsem umístil střešní okna, které mi pomůžou prosvítit druhé nadpraží. Z exteriéru je na domě bílá omítka a kolem oken kamenný obklad. V interiéru je ve většině místností také bílá omítka, která dobře odráží světlo.





