19. ročník soutěže King of daylight / Rodinný Dům
RD THALIA
Anna Paverová

Název projektu
Vedoucí projektu
Název školy
Rok
Popis projektu
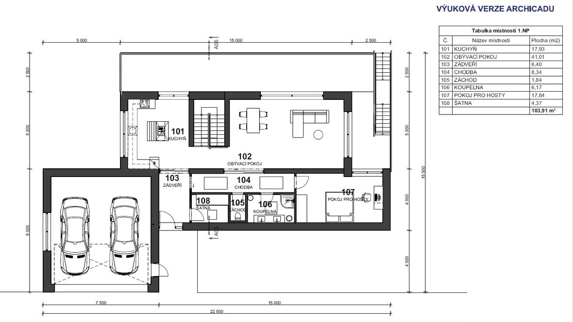
HLAVNÍ MYŠLENKA Cílem bylo vytvořit energeticky nulový, dvoupodlažní rodinný dům s dostatečným prosvětlením obytných a pobytových místností, jehož efektivní dispoziční řešení zajistí čtyřčlenné rodině pohodlné zázemí pro život. ARCHITEKTONICKÉ A DISPOZIČNÍ ŘEŠENÍ Architektonický návrh byl inspirován skutečným stavebním pozemkem, záměrem bylo efektivně oddělit obytný prostor domu a celého pozemku od přilehlé komunikace a kolemjdoucích chodců a cyklistů. Svažitý pozemek umožnuje vyniknout netradiční koncepci, kdy ložnice a pobytové pokoje jsou umístěny v 1.PP domu a jsou přímo propojeny se zahradou francouzskými okny. Pobytové místnosti v 1.NP jsou rovněž propojeny se zahradou díky balkonovému ochozu a bohatému prosklení jižní fasády, která navíc poskytuje vynikající výhled na přilehlou krajinu. Chtěla jsem navrhnout dům, který z ulice působí skromně a kompaktně, a naopak je maximálně otevřen a propojen s jižně orientovaným prostorem zahrady. TECHNICKÉ ŘEŠENÍ Rodinný dům je zastřešen střechou s asfaltovými pásy, která je pokryta fotovoltaickými panely tak ať zbytečně nezastiňují světlíky. Větrání zde bude nucené pomocí vzduchotech. jednotky, která bude také dům chladit i vytápět. Doplňkovým prosvětlením zde slouží elektricky ovládané designové světlíky s plochým sklem, konkrétně typ VELUX CFU 0020Q + ISU 2093 a VELUX SVĚTLOVOD TCR do spodní koupelny. Informace o prosvětlení prochází z programu Daylight Visualizer.













