19. ročník soutěže King of daylight / Rodinný Dům
Rodinný dům
Karel Trlica

Spoluautor projektu
Vedoucí projektu
Název školy
Rok
Popis projektu
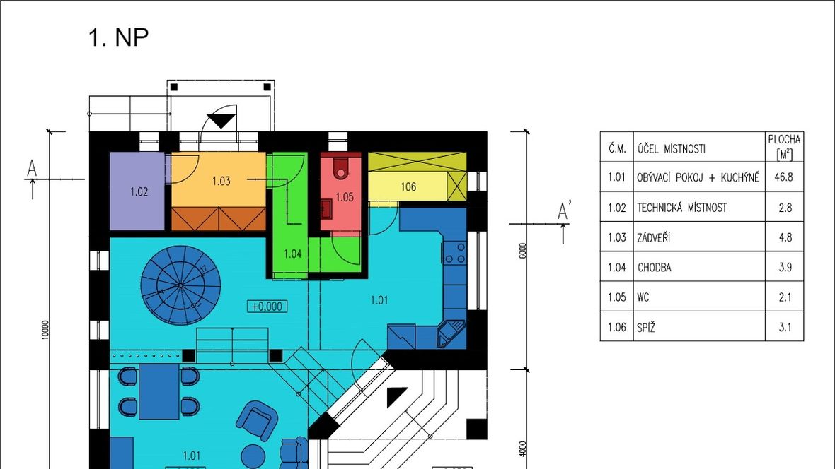
Koncept rodinného domu, jehož myšlenka, byla především v útulnosti, příjemném stráveném času vněm a designu. Vše jsem projektoval abych vyhověl sobě a také ergonomii a typologii. Jedná se o běžný rodinný dům, který jsem se pokusil oživit prvky četných oken a dveří, aby byl interiér dobře osvětlen a budoucím majitelům se zde dobře žilo a relaxovalo. Relax byl také jeden z mých žhavých požadavků, proto v horním patře jsou zastoupeny takto dvě zóny, což jednou z nich je koupelna, kde je umístěna volně stojící vana, před okny, aby člověk, který zrovna má chvíli pro sebe mohl tuto situaci nadechnout plnými doušky a užít výhledu před ním. Druhá místnost je v podobném duchu, jenž místo vany je zde postel, jedná se totiž o hlavní ložnici. Dolní patro má hlavní část, která je navržena s jedním velkým prostorem, aby to členi rodiny měli k sobě blíž. Vše tohle zakončuje východ na východní část domu, kde se tyčí zahrada, kde taktéž jde strávit chvíle relaxem.




