19. ročník soutěže King of daylight / Rodinný Dům - 1. místo
Rodinný dům Pepa
Lenka Drastichová

Název projektu
Rodinný dům Pepa
Vedoucí projektu
Ing. Tomáš Fischer
Název školy
Střední průmyslová škola stavební, Opava, příspěvková organizace
Rok
2023
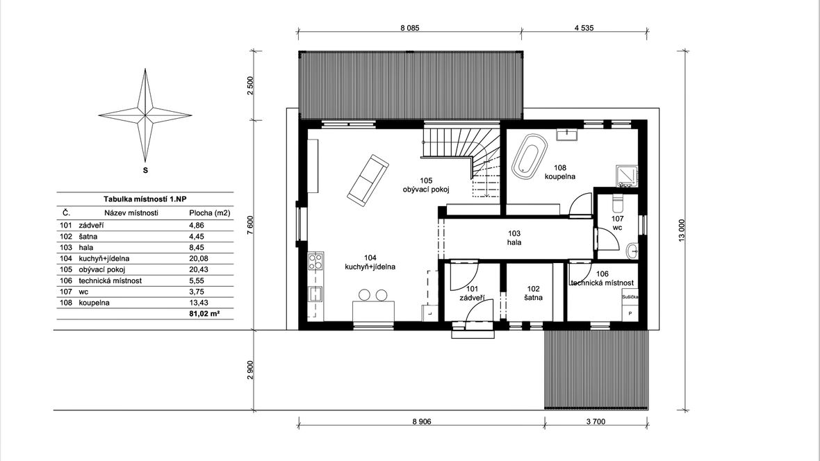
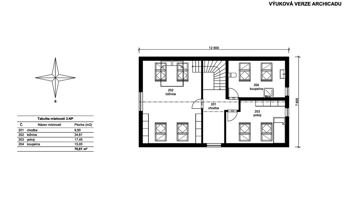
Popis projektu
Záměrem bylo vytvořit dvoupodlažní rodinný dům jednoduchého, a přesto zajímavého tvaru a provedení. U severní části objektu se napojuje příjezdová cesta na veřejnou komunikaci a dále pokračuje směrem k domu, kde je zakončena stáním pro auto s přístřeškem z dřevěných sloupků. Stejným způsobem je vytvořena i terasa na jižní straně, která je příjemným stíněním francouzských oken umístěných v obývacím pokoji, z nichž okno prosvětlující schodiště je pevně zaskleno. Podkroví je mimo obecné okna prosvětleno střešními okny Velux GIL, a tak druhé podlaží získává dostatek slunečního světla.








