19. ročník soutěže King of daylight / Rodinný Dům
RODINNÝ DŮM IBIZA
Karel Antoš

Název projektu
RODINNÝ DŮM IBIZA
Vedoucí projektu
Dana Sováková
Název školy
Střední průmyslová škola stavební Hradec Králové
Rok
2022/2023
Popis projektu
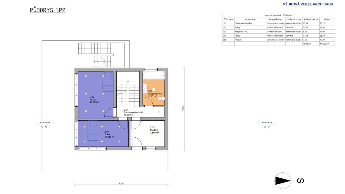
Rodinný dům Ibiza je dvou podlažní objekt s plochou střechou, který je situován do prudkého svahu. Vizuální stránka budovy je řešena v kombinaci barev černá a bílá. Bílou barvu zastupuje omítka a černou zastupuje kamenný obklad antracitové barvy. Doplňkem jsou fasádní a střešní okna v antracitové barvě, které objekt dostatečně prosvětlí. Na pozemku se nachází dominantní vodní prvek a skalka s pestrými barvami květin.










