19. ročník soutěže King of daylight / Rodinný Dům
Rodinný dům s terasou
Adam Skřídlovský

Název projektu
Vedoucí projektu
Název školy
Rok
Popis projektu
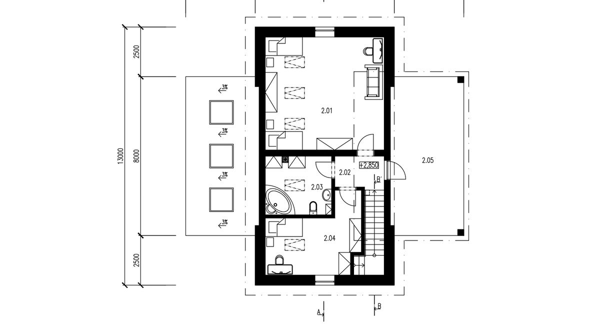
Myšlenkou bylo vytvořit rozmanitý tvar rodinného domu, který by dispozičně dával smysl. Proto jsem navrhl dvoupatrový nadzemní dům o celkové ploše 147m². V prvním podlaží je zvolen prostor pro společenské účely a zázemí. Po schodech nahoru vstoupíte do druhého podlaží, kde se nachází 2 pokoje, koupelna a vstup na zastřešenou terasu. Pro lepší prosvětlení kuchyně a 2NP jsem využil světlíky a střešní okna VELUX. 1NP: 1.01 OBYV. POKOJ + JÍDELNA + KUCHYNĚ 57,6m² 1.02 LOŽNICE 10,7m² 1.03 ZÁDVEŘÍ + CHODBA + SCHODIŠTĚ 28,8m² 1.04 TECH. MÍSTNOST 5,9m² 1.05 SPÍŽ 4,5m² 1.06 KOUPELNA 6,6m² 1.07 WC 1,35m² 2NP: 2.01 POKOJ 34,2m² 2.02 CHODBA + SCHODIŠTĚ 8,9m² 2.03 KOUPELNA 9,8m² 2.04 POKOJ 15,2m² 2.05 TERASA 15,9m²







