19. ročník soutěže King of daylight / Rodinný Dům
RODINNÝ DŮM ŠUPICHOV
Anastasiia Brovko

Název projektu
Vedoucí projektu
Název školy
Rok
Popis projektu
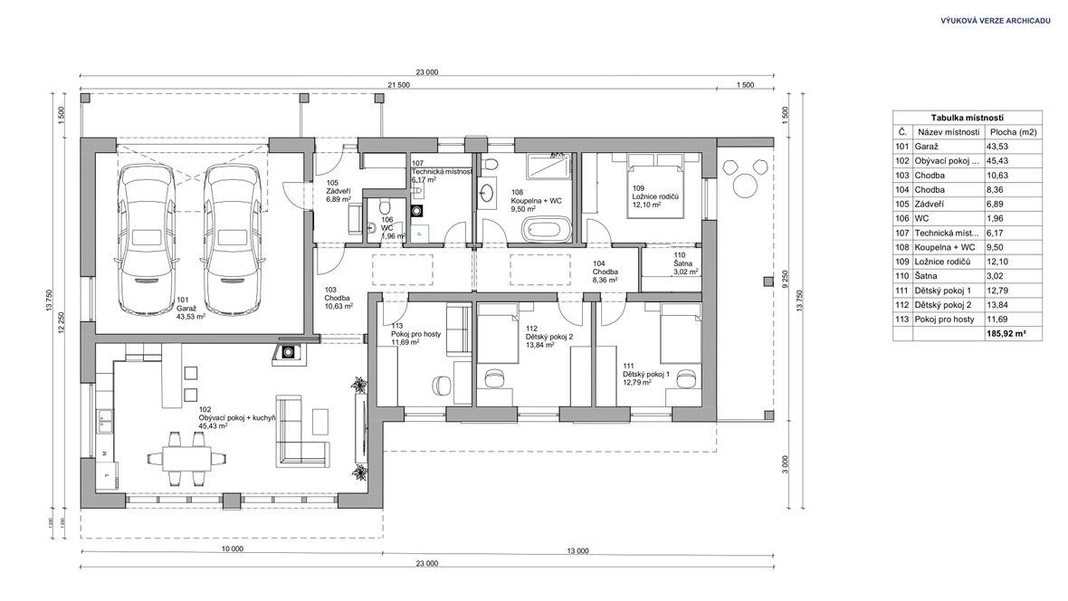
Jedná se o jednopodlažní dům s plochou střechou která je řešena jako zelena intenzivní. Dům je ve tvaru L a obsahuje dvě zastřešena parkovací místa. Tato stavba je určena pro 4-5 členů rodiny. Do zádveří se můžeme dostat jak z venku, tak i z garáže což znamená že nemusíme po tom, co zaparkujeme auto obcházet a jít hlavním vchodem. Místnost vedle zádveří funguje jako šatník. Dále následujeme do chodby, kde máme dveře do samotné WC pracovny klidové zóny a obývacího pokoje s kuchyní. Pracovna je umístěna naproti vchodu, aby návštěva se nepotkávala z domácími, který třeba odpočívají, zde ale je možné nahradit pracovnu jinou místnosti třeba jako pokoj pro hosty posilovnu, hračkárnu nebo dalším dětským pokojem. V projektu je dodrženo zónovaní. V klidové zóně se nachází koupelna s WC dva velké dětské pokoje s plochou 14 m2 a výhledem na terasu a jednou ložnici s malou šatnou, která je umístěna da se říct na konci chodby ale přistup do šatny je z ložnice tím vlastě šetříme prostor v pokoji a zbavujeme se nevyužité plochy chodby, ložnice je ještě vybavena velkým francouzským oknem, který vychází na východ také je tam mala terasa pro ložnice. Na chodbě jsou umístěné dva světlíky. Obývací pokoj je umístěn na západ je společný s kuchyni nad kuchyňskou linkou je umístěné dlouhý okno, jeho účelem je osvětleni pracovní plochy a také slouží jako architektonický doplněk. Pak vidíme velká okna, která vychází na terasu jsou dobré pro osvětleni prostoru a pěknému výhledu na terasu. Vedle oken je obložena dřevěná fasáda a také podobným stylem se řeší příčky mezi sloupkem a zdi. Stříška nad terasou pro ložnice a nad vstup je uložena na sloupky. Stříška ze strany terasy je řešena pomoci ISO nosníku. Na terase máme umístěnou pergolu s pohovkou, jídelním stolkem a grilem, naproti máme bazén s lehatkama a v rohu pozemku je umístěno jezírko z litorálním pásmem a je obložen velkýma kameny.








