19. ročník soutěže King of daylight / Rodinný Dům
Rodinný dům Vallewa
Monika Hamerská

Název projektu
Rodinný dům Vallewa
Vedoucí projektu
Ing. Jana Leischnerová
Název školy
Střední průmyslová škola stavební Brno, příspěvková organizace
Rok
2023
Popis projektu
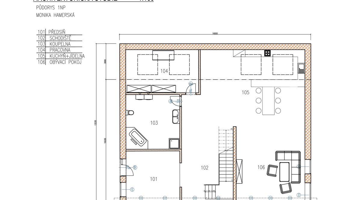
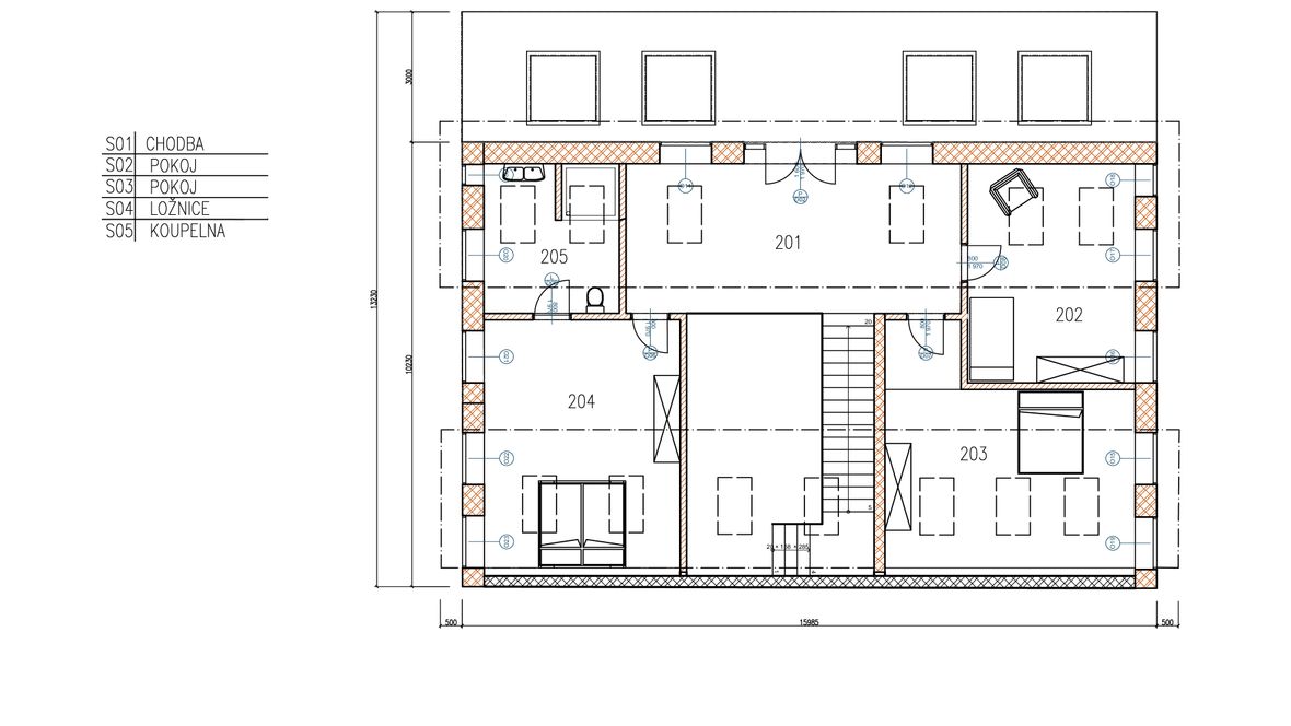
Dvoupatrový rodinný dům Vallewa se nachází v klidné lokalitě nedaleko města. Dům je navržen pro čtyřčlennou rodinu a oplývá velkou zahradou. Cílem projektu bylo propojení přírody, světla a moderní architektury, tak aby objekt v přírodě nepřekážel a zároveň upoutal vaši pozornost. Částečně je zasazen ve svahu, tudíž moc nevyčnívá nad povrch. Díky velkým oknům a světlíkům se do domu dostává hodně světla. Dům má mnoho malých i velkých prostor a z druhého patra je možný přístup do zahrady.







