20. ročník soutěže King of daylight / Rodinný Dům
Dům Magnolia
Tomáš Pálka

Název projektu
Dům Magnolia
Vedoucí projektu
Ing. Jana Leischnerová
Název školy
Střední průmyslová škola stavební Brno
Rok
2024
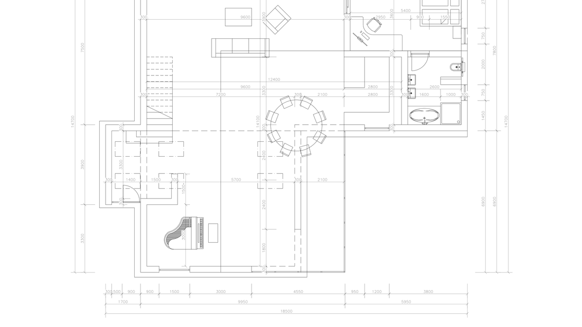
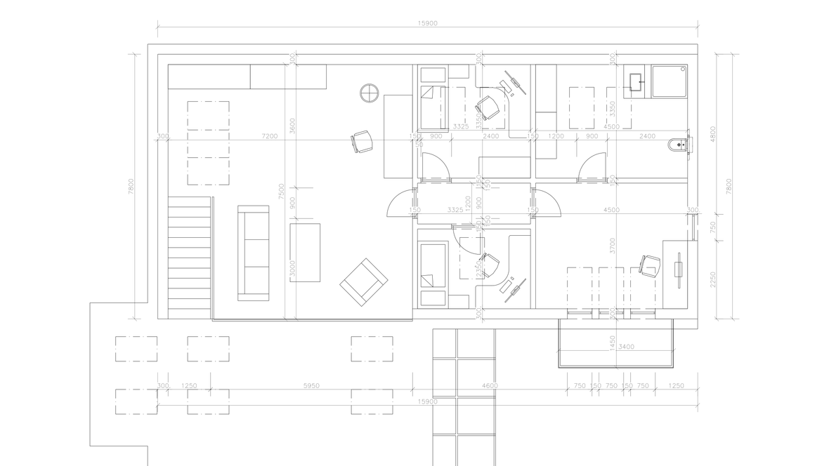
Popis projektu
Tento projekt je vytvořen v duchu pohodlí a pocitu relaxace, proto je velmi duležité aby se dovnitř dostalo co nejvíce světla a čerstvého vzduchu. K tomu poslouží okna od společnosti Velux, a to dálkově ovládané výklopně-kyvné okna GPU, střešní terasa a střešní okna GGLS 3v1 se solárním napájením. Dosažení prosvětlení a filtrace vzduchu je klíčové pro příjemný pobyt obyvatel objektu, což je jedna z hlavních myšlenek. Dům je vymyšlen, tak aby byl zároveň jednoduchý, ale také pohledný a designově zajímavý.













