20. ročník soutěže King of daylight / Rodinný Dům - 2. místo
RD DECENS
Daniel Mucha

Název projektu
RD DECENS
Vedoucí projektu
Ing. Tomáš Fischer
Název školy
Střední průmyslová škola stavební, Opava, příspěvková organizace
Rok
2024
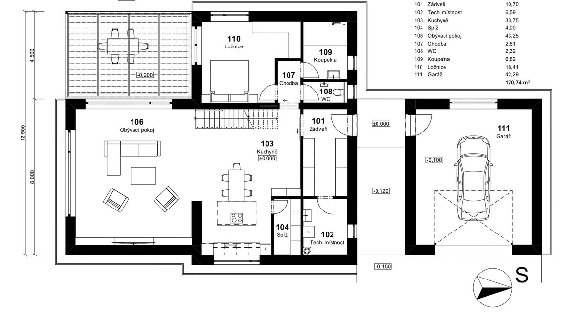
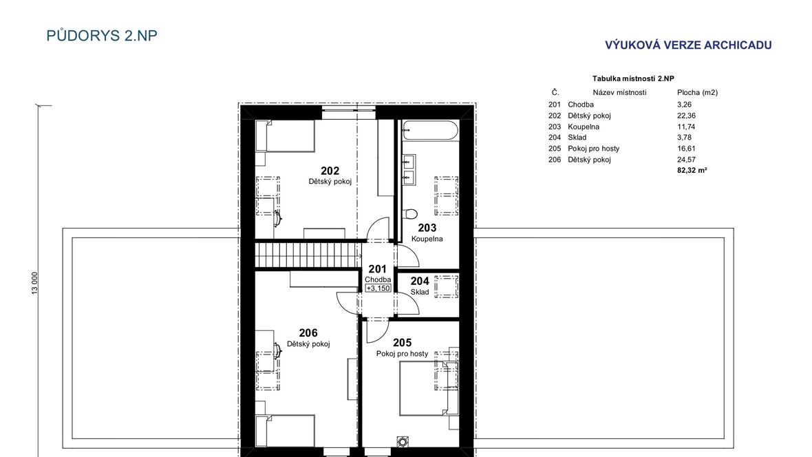
Popis projektu
Mým cílem bylo vytvořit dvoupodlažní rodinný dům jednoduchého tvaru pro čtyřčlennou rodinu. Dům tvoří dvě protínající se tělesa: klasická hmota se sedlovou střechou a k ní kolmý podlouhlý kvádr. Klasická hmota je tu dominantní a poutá na sebe hlavní pozornost. Kvádr je na pohled jednoduchá dodatečná konstrukce s odlišným materiálovým provedením v podobě modřínového obkladu. Hlavním centrem domu je řádně prosvětlená velká obytná místnost s výstupem na zastíněnou terasu. Prosvětlení obytného podkroví je řešeno pomocí střešních oken VELUX.












