20. ročník soutěže King of daylight / Rodinný Dům
Novostavba rodinného domu a jeho rekonstrukce na kavárnu s restaurací
Adam Vágner

Název projektu
Novostavba rodinného domu a jeho rekonstrukce na kavárnu s restaurací
Vedoucí projektu
Ing. Zdeněk Odehnal
Název školy
SPŠ Stavební Brno Kudelova 8
Rok
2023/2024
Popis projektu
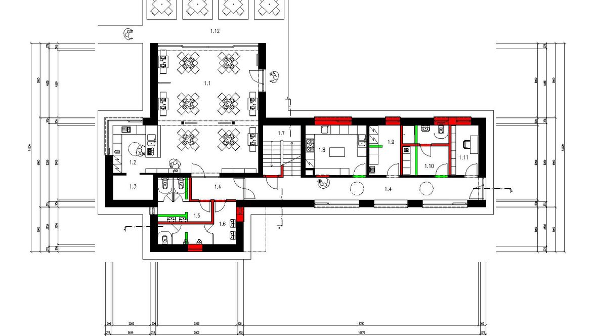
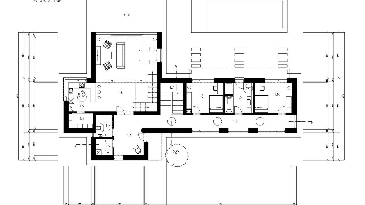
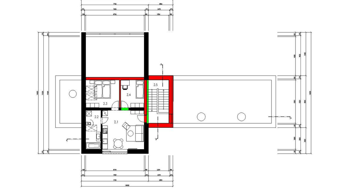
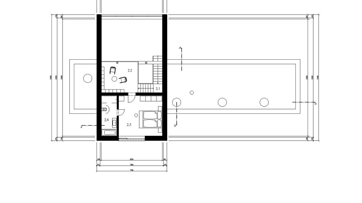
Novostavba rodinného domu a jeho rekonstrukce Novostavba rodinného domu se nachází v Brně městské části Soběšice. Objemově dům reaguje na stávající poměry a volnou zástavbu v území. V přízemí jsou pokoje a obytné části, v patře tzv. master bedroom. Rekonstrukce má sloužit jiné funkci a to kavárně s restaurací. Hlavní sál s barem se nachází v bývalé obývací části rodinného domu. Na podélnou chodbu jsou přimknuty sociální zázemí s provozními částmi. Patro umožňuje umístění samostatné jednotky, která může sloužit k ubytování apartmánového charakteru. Fasáda domu je řešena kombinací bílé omítky a dřeva.



















