20. ročník soutěže King of daylight / Rodinný Dům
Rodinný dům Bella
Monika Křivánková

Název projektu
Rodinný dům Bella
Vedoucí projektu
Ing. arch. Jaromír Srba
Název školy
Střední průmyslová škola stavební České Budějovice
Rok
2024
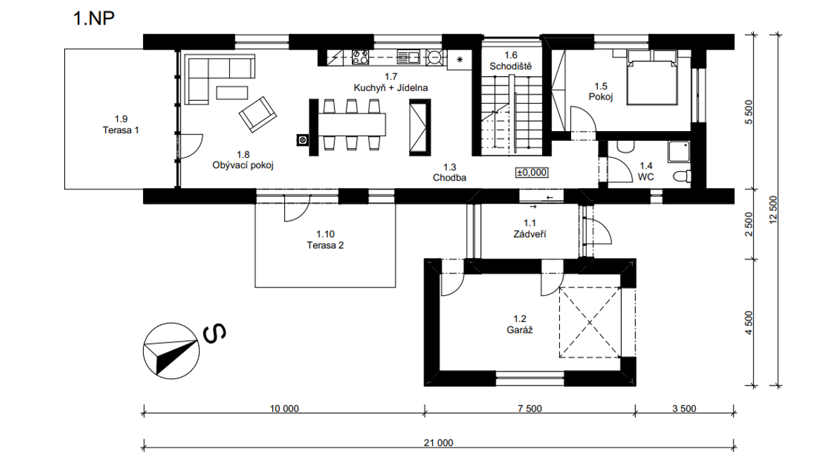
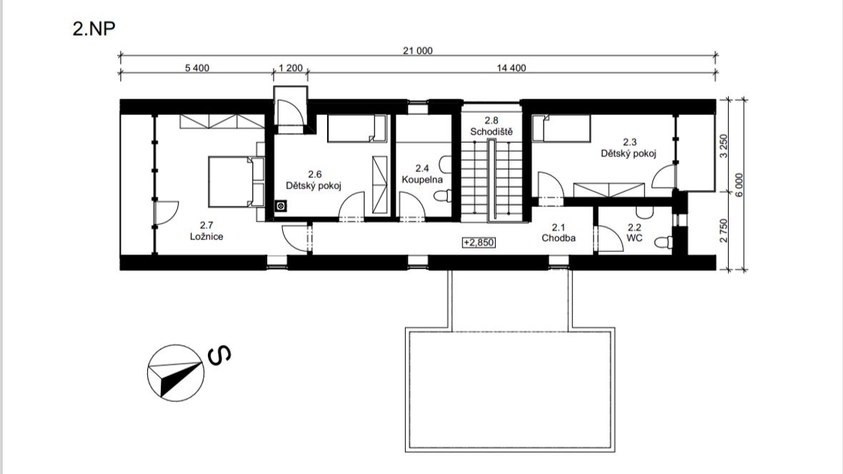
Popis projektu
Záměrem byl dvoupodlažní rodinný dům pro čtyřčlennou rodinu. Dům je vzdušný a prosluněný. V druhém podlaží najdeme tři ložnice, každou s vlastním balkónem s výhledem do krajiny. Velmi impozantní prvky jsou prosklené štítové stěny a prosklené schodiště. Dále je dům obohacen dvěma terasami, jednou na východ pro příjemnou snídani a druhou na jihozápad pro večerní grilování. Na domě jsou použita střešní okna GLU0064B se svislým doplňkovým oknem VIU0066 a na léto jsou opatřeny venkovními roletami SML.











