20. ročník soutěže King of daylight / Rodinný Dům
RD - okno do přírody
Adam Grabovský

Název projektu
RD - okno do přírody
Vedoucí projektu
Ing.arch. Tomáš Fischer
Název školy
Střední průmyslová škola stavební, Opava, příspěvková organizace
Rok
2024
Popis projektu
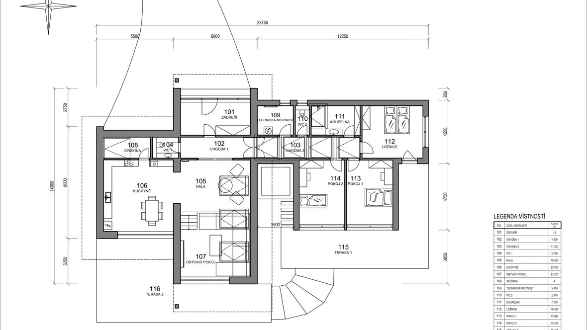
Projekt rodinného domu spojuje originální architekturu s útulným prostředím, nabízejícím pohodlí a relaxaci pro celou rodinu. Jeho design zahrnuje velká okna a devět světlíků Velux, které propouštějí do interiéru spoustu světla a propojují domov s okolní krajinou. Dům disponuje prostornými obývacími prostory, elegantní ložnicí, dvěma pokoji a kuchyní vytvářejícími ideální místo pro rodinný život. Dvě rozsáhlé terasy a vířivka přidávají venkovnímu prostoru další rozměr pro odpočinek a společenské aktivity. Velux CFU 0025Q 5x, Velux GPU 4x












