20. ročník soutěže King of daylight / Rodinný Dům
Rodinný Dům Lagom
Martina Mašínová

Název projektu
Rodinný Dům Lagom
Vedoucí projektu
Ing. arch. Dagmar Zimová
Název školy
Střední průmyslová škola stavební Josefa Gočára
Rok
2024
Popis projektu
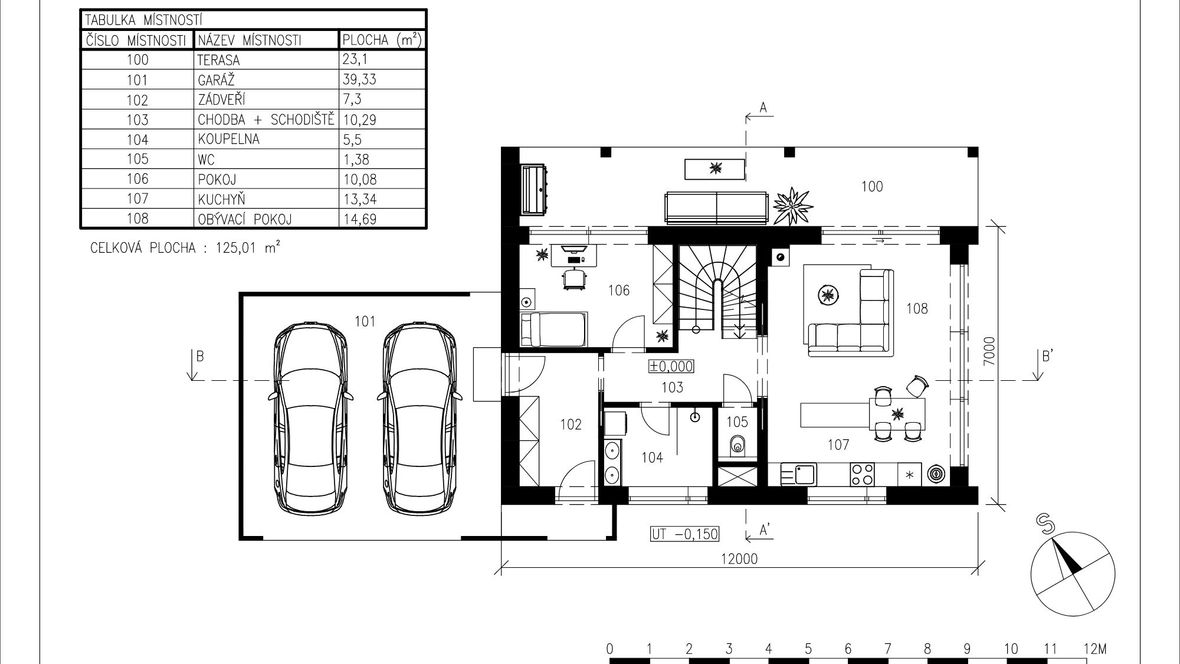
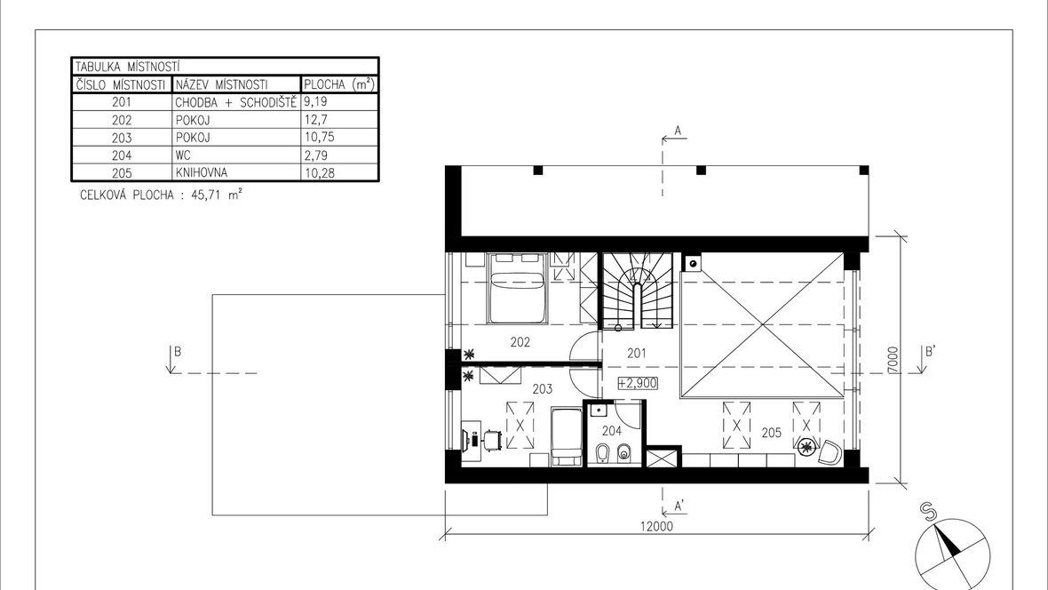
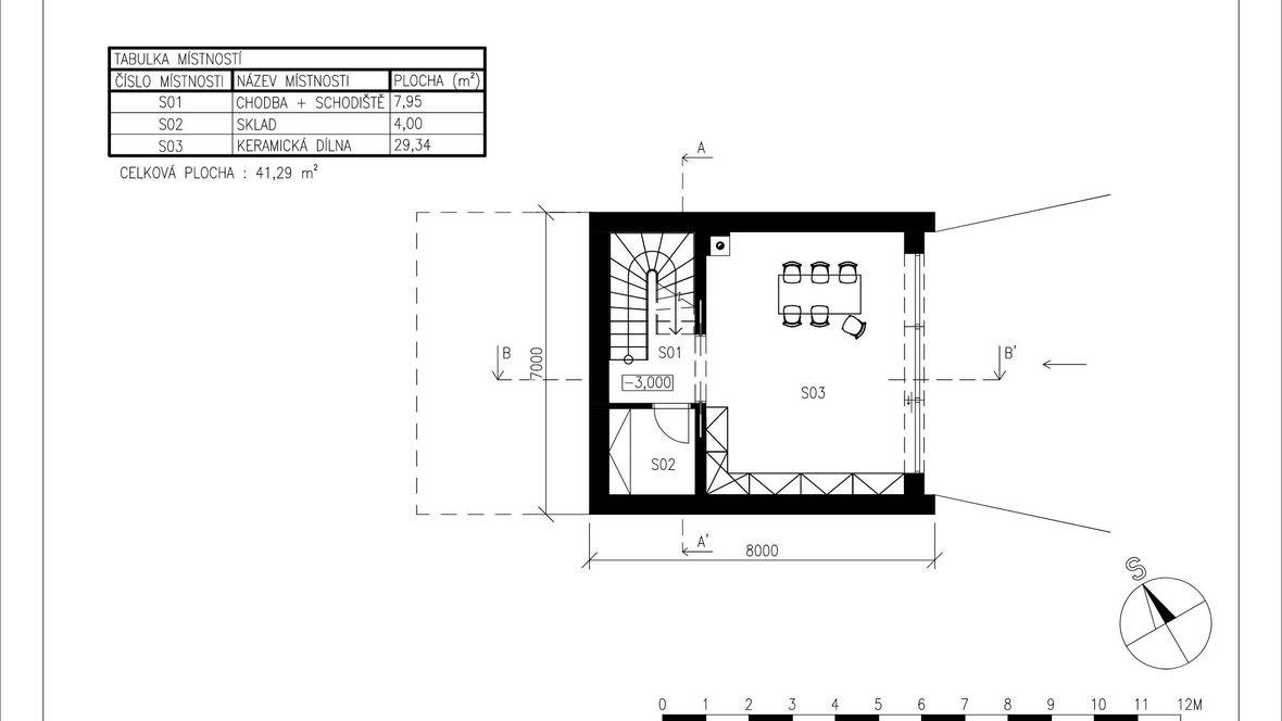
KONCEPT Konceptem, či hlavní myšlenkou při navrhování tohoto rodinného domu bylo navrhnutí útulného a prosluněného místa, kde se jednotliví členi domácnosti budou cítit dobře. ARCHITEKTONICKÉ A DISPOZIČNÍ ŘEŠENÍ Dům se skládá ze dvou hmot a to z hlavní (obytný prostor) a vedlejší (garáž). V prvním nadzemním podlaží najdeme zádveří, do kterého z venku vedou dva vchody, ze zádveří se dostaneme dále do chodby, odkud vedou dveře do koupelny, samostatného WC, pokoje a obývacího pokoje spojeným s kuchyňským koutem, z chodby také vede schodiště do podkroví a suterénu. V podkroví najdeme ložnici, druhý pokoj, WC a knihovnu, zajímavostí podkroví je propojená část s přízemím. V suterénu najdeme sklad a keramickou dílnu.











