20. ročník soutěže King of daylight / Rodinný Dům
RODINNÝ DŮM ŠIMI
Tomáš Vaďura

Název projektu
RODINNÝ DŮM ŠIMI
Vedoucí projektu
Ing. Zuzana Kučerová
Název školy
Střední odborná škola a Gymnázuim Staré Město, příspěvková organizace
Rok
2024
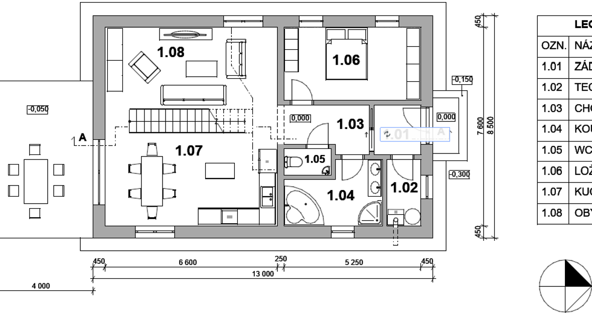
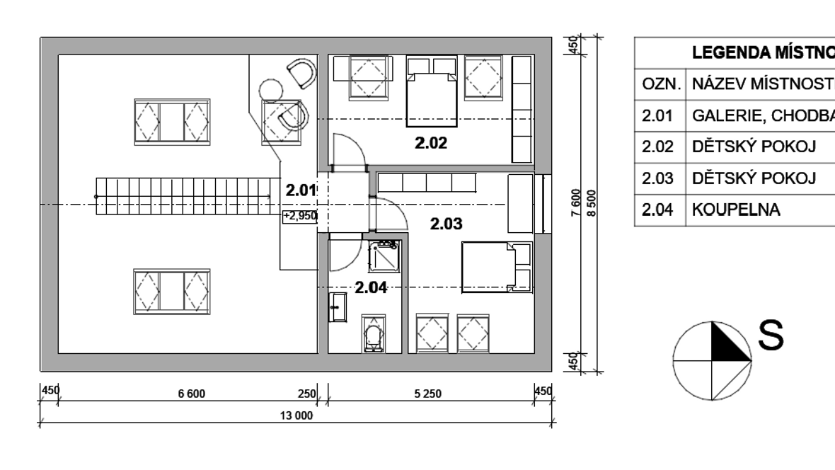
Popis projektu
Cílem bylo vytvořit jednoduchý dům se zajímavým architektonickým řešením a přehlednou dispozicí. Dvoupodlažní rodinný dům se sedlovou střechou. Na obytný prostor navazuje terasa, která propojí objekt s venkovní zahradou. Zajímavostí je volný prostor u schodiště a malou galerií, kde si člověk odpočine. Střešní okna Velux GGL zajišťují dostatečné prosvětlení obytných prostorů a okna Velux GGLS 3v1 v hlavních místnostech nejen prosvětlí, ale také provětrají celý dům. Objekt je postaven ze systému Ytong.









