20. ročník soutěže King of daylight / Rodinný Dům - Cena zaměstnanců VELUX
Rodinný dům Ritulans
Oliver Molčanyi

Název projektu
Vedoucí projektu
Název školy
Rok
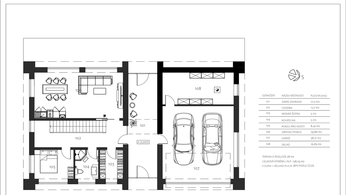
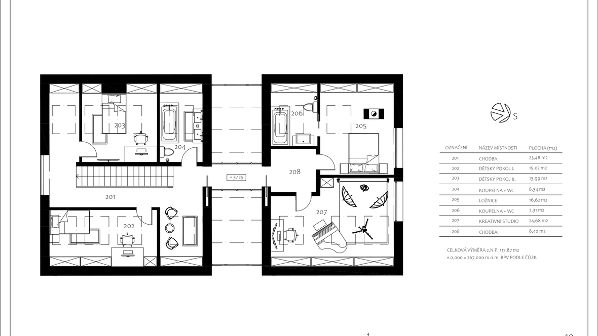
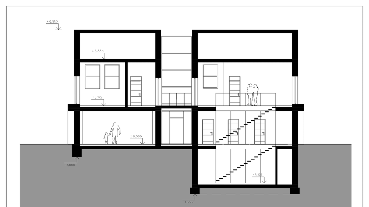
Popis projektu
Architektonická koncepce domu Ritulans se opírá o čisté linie, minimalistický design a harmonii s okolní krajinou. Fasáda domu kombinuje prvky skla, betonu a dřeva, vytvářející jemný a současně robustní dojem. Interiér domu je laděn do neutrálních barev, které podtrhují moderní a vkusný design. Velkorysá obývací prostory spojená s jídelnou a kuchyní vytvářejí otevřený a propojený prostor, ideální pro rodinné setkání i společenské události. Součástí domu je také rozlehlá terasa s venkovním posezením a bazénem, kde si můžete užívat relaxaci a odpočinek s výhledem do okolní přírody. Prosvětlení domu Ritulans je promyšlené tak, aby propojovalo interiér s okolní krajinou a vytvářelo příjemnou atmosféru plnou světla a vzdušnosti. Architektura domu je navržena tak, aby efektivně využívala denního světla. Kombinace vysokých stropů a strategicky umístěných oken umožňuje světlu pronikat hluboko do interiéru. Rodinný dům využívá 26x střešní okno řady Premium velikosti SK08, a také 12x střešní okno řady Premium velikosti SK10



















