20. ročník soutěže King of daylight / Rodinný Dům
Rodiný dům Šupichova
Anna Letková

Název projektu
Vedoucí projektu
Název školy
Rok
Popis projektu
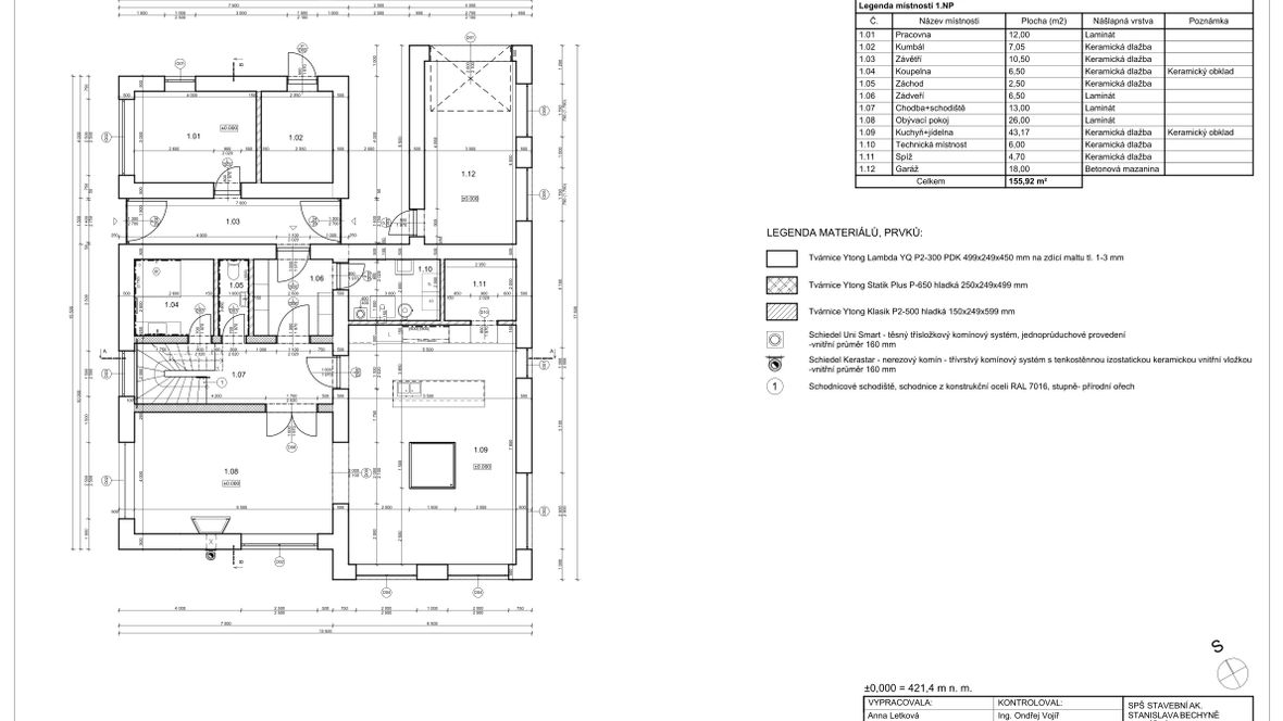
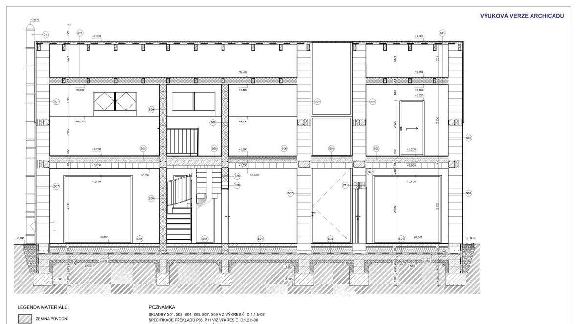
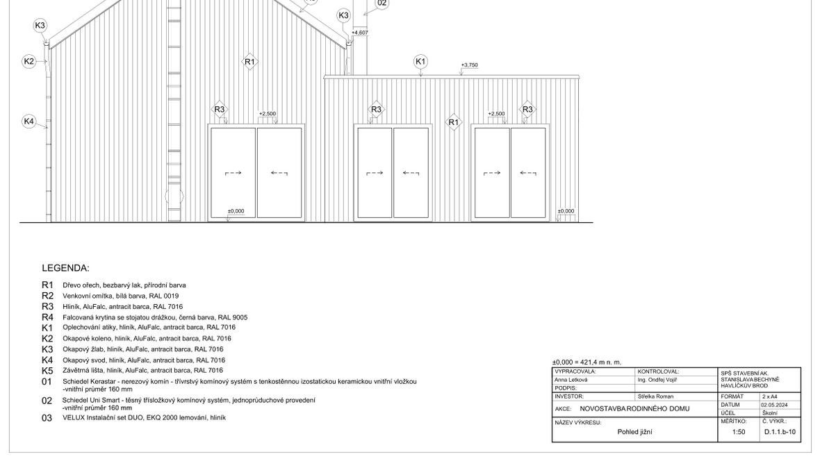
Jedná se o dvoupodlažní rodinný dům určený pro 4 členy domácnosti. Objekt disponuje plochou zelenou střechou a sedlovou střechou s falcovanou krytinou. Na objekt byl využit zděný systém YTONG včetně stropní nosníkové konstrukce a překladů. Krov je řešen hambalkovou soustavou. Založení stavby je realizováno pomocí plošných železobetonových pasů. K překonání výškového rozdílu mezi podlažími je realizováno ocelové schodnicové schodiště. U rodinného domu se nachází dvě parkovací místa, jedno kryté a jedno venkovní. Celková zastavěná plocha činí 208,750 m². K prosvětlení prostoru 1. nadzemního podlaží napomáhají velká francouzská okna. V 2. nadzemním podlaží je rozmístěno 6 Velux instalační set DUO střešních oken. Dále je nad kuchyní a jídelnou umístěn světlík, který je realizován v ploché střeše.







