21. ročník soutěže King of daylight / Build for Life - 2. místo
Dvoukontejnerový dům na bazi vozu SGS
Jurij Perec

Název projektu
Dvoukontejnerový dům na bazi vozu SGS
Vedoucí projektu
Ing. Radek Wasserbauer
Název školy
SPŠS ak. St. Bechyně Havlíčkův Brod
Rok
2025
Popis projektu
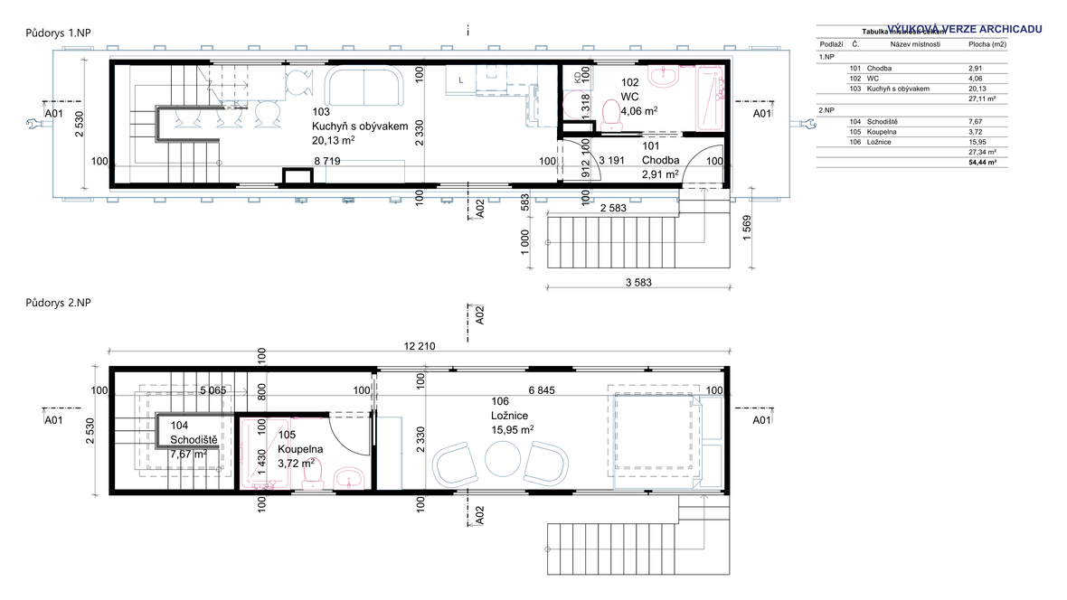
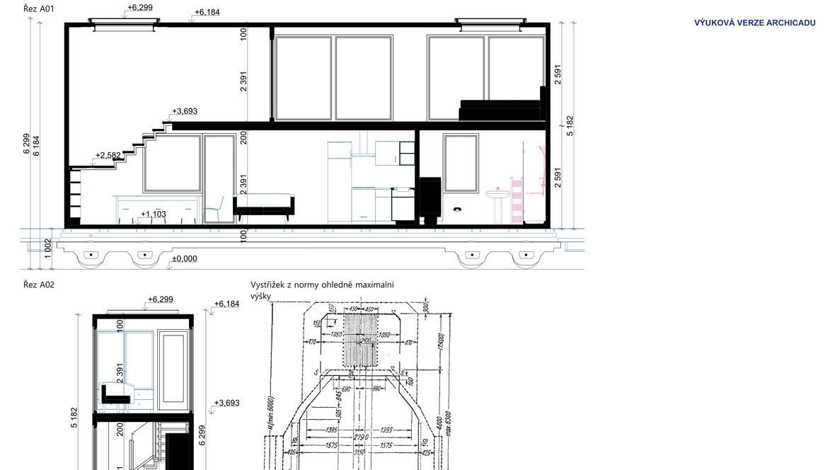
Návrhem je použít staré vozy SGS vyrobené ještě v Československu a nahrazene vozy Sgnss. Obytná část se skládá z dvou kontejnerů položených na americký zpusob a zateplené pro České reálie. Je možné připojit další vůz SGS s nadržema a tím vytvořit dům pojízdný po železnicí (když danny vůz s nadržemi není připojení, obytné buňky vyžadují připojení k inženýrským siťem). Je to takzvaný karavan na kolejích.












