21. ročník soutěže King of daylight / Build for Life
KOMPAKT
Tomáš Pálka

Název projektu
KOMPAKT
Vedoucí projektu
Leischnerová
Název školy
Střední průmyslová škola stavební Brno
Rok
2025
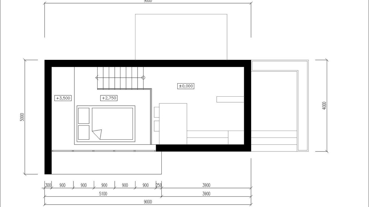
Popis projektu
Dům je malý a úsporný pro šetření materiálů. Všechny potřebné materiály byly kvůli zanecháváni uhlíkové stopy dovozem nakoupeny a vytvořeny u lokálních firem. Všechny potřebné energie budou zajištěny obnovitelnými zdroji energie. Hlavní konstrukce domu je postavena z EKOPANELŮ. Dům je zastřešen extenzivní zelenou střechou. Stavba je z estetických důvodů obložena opálenými dřevěnými prkny. Velké zaměření bylo také na zateplení domu a minimalizování tepelných mostů z důvodů šetření energie a chránění životního prostředí. To bylo dokázáno zároveň s vynikajícím prosvětlením prostoru díky střešním oknům VELUX s trojsklem a UV filtrem pro pohodlnější a zdravější životní prostředí.






