21. ročník soutěže King of daylight / Freestyle
Chata Yuki
Martina Mašínová

Název projektu
Chata Yuki
Vedoucí projektu
Ing. arch. David Bartoš
Název školy
SPŠ stavební Josefa Gočára
Rok
2025
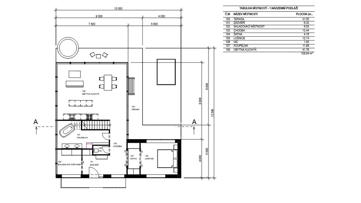
Popis projektu
Chata Yuki je dřevostavba v duchu tradiční japonské architektury. Samotný název vychází z japonštiny, přesněji Yuki znamená v překladu sníh, tím jsem chtěla vyjádřit účel stavby, který spočívá v horské lokalitě s krásnými výhledy a dvoukilometrově vzdáleným lyžařským střediskem Niseko, proto byla chata spíše zamýšlená jako lyžařská, ale je využivatelná po celý rok.







